Terreno en calle Guatemala, 198 -224

Малага, Эстепона, Коста Нату́ра, Calle Guatemala, 198 -224
350 000 €
Оставить отзыв
Урбанизируемый Тип недвижимости
880 m² Площадь участка
Жилой Использование участка
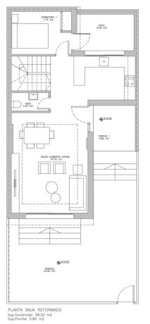
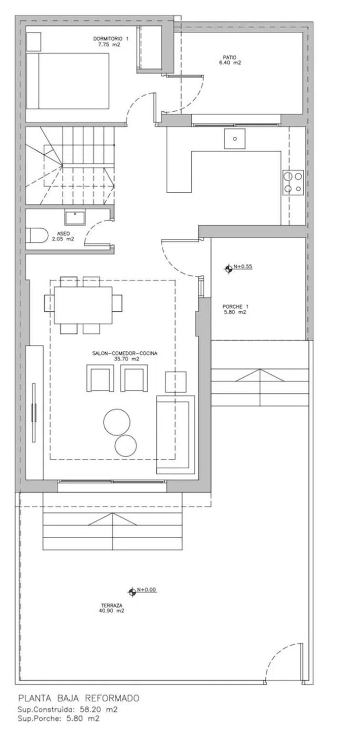
Parcela en venta en Estepona – 880 m² con opciones de desarrollo flexibles Esta parcela de 880,33 m², ubicada en una zona residencial en crecimiento de Estepona, representa una excelente oportunidad para desarrollar una villa privada a solo minutos de la playa, campos de golf y todos los servicios locales. La propiedad incluye cimientos existentes, lo que brinda al futuro propietario dos opciones claras: Opción 1: Construir una villa sobre los cimientos estructurales actuales (proyecto de ejecución disponible). Opción 2: Retirar los cimientos existentes y desarrollar un diseño completamente nuevo desde cero. En ambos casos, el comprador deberá solicitar la licencia de obra correspondiente en el ayuntamiento local. Ubicada en una zona tranquila pero bien comunicada de Estepona, esta parcela es ideal para compradores particulares, promotores o inversores que buscan construir una villa moderna con piscina, jardín y espacios de vida abiertos. Con buena exposición al sol y fácil acceso al centro de Estepona, Marbella, Puerto Banús y el Aeropuerto de Málaga, la ubicación ofrece un gran valor a largo plazo y un estilo de vida atractivo. Características clave: Superficie del terreno: 880,33 m² Apta para construir una villa con piscina Entorno residencial tranquilo Cerca de campos de golf, playas y servicios Excelente potencial de inversión No pierdas esta oportunidad de construir tu casa ideal en una de las zonas costeras más atractivas del sur de España. ¡DÉJANOS MOVERTE!

Характеристики недвижимости

Complex information

  • Тип недвижимости
    Урбанизируемый

Данные о недвижимости

  • Тип недвижимости
    Вторичка

Площади

  • Площадь участка
    880 m²

Base

  • Использование участка
    Жилой

Планы

Статистика рыночных цен на Terreno en calle Guatemala, 198 -224

Карта

Малага, Эстепона, Коста Нату́ра, Calle Guatemala, 198 -224 Поехать в это место
Оставьте отзыв о Terreno en calle Guatemala, 198 -224
0
0 reviews
1
0% (0)
2
0% (0)
3
0% (0)
4
0% (0)
5
0% (0)
CarlingPetri
350 000 €
Свяжитесь с рекламодателем

Для получения дополнительной информации свяжитесь с платформой

REF: 241931

Отзывы о Terreno en calle Guatemala, 198 -224
Loading...

No reviews have been left for this object yet

Ближайшие объекты

Исследуйте близлежащие объекты, которые мы обнаружили неподалеку от этого местоположения.

Terreno en Barrio Valle Romano Golf

Малага, Эстепона, Коста Нату́ра, Barrio Valle Romano Golf
450 000 €

Excepcional oportunidad para construir la villa de tus sueños en Valle Romano...

0
0 отзывов

Terreno en calle Nicaragua s/n

Малага, Эстепона, Коста Нату́ра, Calle Nicaragua s/n
210 000 €

Construir la casa de tus sueños con vistas al mar Situado en la codiciada zona d...

0
0 отзывов

Terreno en calle Guatemala, 198 -224

Малага, Эстепона, Коста Нату́ра, Calle Guatemala, 198 -224
350 000 €

Parcela en venta en Estepona – 880 m² con opciones de desarrollo flexibles Esta...

0
0 отзывов

Terreno en Altos de Estepona

Малага, Эстепона, Альтос-де-Эстепона, Altos de Estepona
380 000 €

Parcela rústica a la venta en la zona de Los Reales con 36.865 metros de terreno...

0
0 отзывов

Terreno en Barrio Buenas Noches

Малага, Эстепона, Плая Бахия Дорада, Barrio Buenas Noches
270 000 €

Oportunidad excepcional de adquirir una estupenda parcela de 569 m² en una de la...

0
0 отзывов

Terreno en Barrio Centro

Малага, Эстепона, Эстепона Пуэбло, Barrio Centro
280 000 €

Oportunidad única de adquirir una estupenda parcela de 630 m² a tan solo 5 minut...

0
0 отзывов

Terreno en Barrio Valle Romano Golf

Малага, Эстепона, Коста Нату́ра, Barrio Valle Romano Golf
300 000 €

Presentamos una magnífica parcela de 800 m² ubicada a tan solo 5 minutos del cen...

0
0 отзывов

Terreno en Barrio Valle Romano Golf

Малага, Эстепона, Коста Нату́ра, Barrio Valle Romano Golf
220 000 €

A tan solo 5 minutos del centro urbano de Estepona, esta magnífica parcela de 46...

0
0 отзывов

Terreno en calle Guatemala

Малага, Эстепона, Коста Нату́ра, Calle Guatemala
295 000 €

Parcela Calle Guatemala Descubre una oportunidad excepcional para construir tu v...

0
0 отзывов
Звонок

Мы используем собственные и сторонние файлы cookie для анализа использования веб-сайта и показа вам рекламы, соответствующей вашим предпочтениям, на основе профиля, созданного по вашим привычкам просмотра (например, посещенные страницы). Подробнее. Вы принимаете файлы cookie?