Продажа таунхауса в Avenida Montes de Málaga s/n , Манильва

Малага, Манильва, Чуллера, Avenida Montes de Málaga s/n
Распродано
Оставить отзыв
Таунхаусы Тип недвижимости
2025 Год сдачи
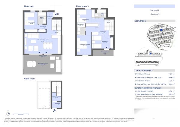
163 m² м2 построенных
114 m² м2 полезной площади
3 Ванные комнаты
4 Спальни
В процессе строительства Состояние
9 Всего этажей
Включено в цену Гараж
B2-N7 Название

В уникальном окружении с захватывающими видами, этот проект предлагает 40 таунхаусов с 3 и 4 спальнями. Все дома имеют просторные террасы, с которых открываются непревзойдённые пейзажи Средиземного моря.

Угловые дома оснащены большими приватными садами и возможностью установки индивидуального бассейна, что обеспечивает исключительный уровень комфорта и проживания в этом привилегированном месте.

Каждому дому сопутствует парковочное место, а также доступны обширные общие зоны с открытым и закрытым бассейнами, современным коворкинг-пространством и полностью оборудованным фитнес-центром, спроектированным для максимального удобства жителей.

Эта новостройка находится в непосредственной близости от известных курортов, предлагая широкий спектр возможностей для отдыха, включая гольф-поля и яхтенные порты, что идеально подходит для активностей на свежем воздухе и семейного времяпрепровождения.

Стратегическое расположение позволяет добраться до аэропорта Гибралтара всего за 15 минут на автомобиле, а также не далеко от таких популярных мест, как Эстепона, Пуэрто-Банус и Марбелья.

Жилые дома идеально подходят для семей, желающих приобрести основное жильё, второе место для отдыха или инвестировать в эксклюзивную недвижимость. Их дизайн позволяет в полной мере насладиться исключительным климатом Коста-дель-Соль. Ясное небо и приятные температуры создают идеальные условия для загара, чтения или ужина на открытой террасе, позволяя наслаждаться каждым моментом жизни.

Характеристики недвижимости

Complex information

  • Жилой комплекс
    Blue Marine
  • Тип недвижимости
    Таунхаусы

Информация о проекте / Статус работы

  • Год сдачи
    2025
  • Состояние
    В процессе строительства

Данные о недвижимости

  • Тип кухни
    Американская кухня
  • Гараж
    Включено в цену
  • Название
    B2-N7
  • Спальни
    4
  • Ванные комнаты
    3
  • м2 построенных
    163 m²
  • м2 полезной площади
    114 m²
  • Тип недвижимости
    Новостройка

Площади

  • Площадь террасы
    39 m²

Base

  • Всего объектов недвижимости
    40
  • Всего этажей
    9

Энергетическая сертификация

  • Энергоаудитный сертификат
    A

Удобства

Удобства жилья:

Внутренние окна
Внешнее окно
Терасса

В здании:

Бассейн
Тренажёрный зал
Поле для гольфа
Сад

Вистас:

Виды на море

Планы

Статистика рыночных цен на Casa o chalet en venta en Avenida Montes de Málaga s/n

Карта

Малага, Манильва, Чуллера, Avenida Montes de Málaga s/n Поехать в это место
Оставьте отзыв о Casa o chalet en venta en Avenida Montes de Málaga s/n
0
0 reviews
1
0% (0)
2
0% (0)
3
0% (0)
4
0% (0)
5
0% (0)
ON3
Blue Marine
Жилой комплекс
Распродано
Свяжитесь с рекламодателем

Для получения дополнительной информации свяжитесь с платформой

REF: 25

Отзывы о Casa o chalet en venta en Avenida Montes de Málaga s/n
Loading...

No reviews have been left for this object yet

Ближайшие объекты

Исследуйте близлежащие объекты, которые мы обнаружили неподалеку от этого местоположения.

Новый жилой комплекс Blue Marine в Манильве.

Малага, Манильва, Чуллера, Avenida Montes de Málaga s/n
450 000 €

В уникальном окружении с захватывающими видами, этот проект предлагает 40 таунха...

0
0 отзывов

Pareados en Venta en Urbanizacion La Reserva s/n, Sotogrande

Кадис, Сотогранде, Сотограндэ Альто, Urbanizacion La Reserva s/n
1 175 000 €

Espaciosde vidaLos Albares de Sotogrande CádizLOS ALBARES DE SOTOGRANDE consta d...

0
0 отзывов

Adosados en Venta en Urbanizacion La Reserva s/n, Sotogrande

Кадис, Сотогранде, Сотограндэ Альто, Urbanizacion La Reserva s/n
850 000 €

Espaciosde vidaLos Albares de Sotogrande CádizLOS ALBARES DE SOTOGRANDE consta d...

0
0 отзывов

Adosados en Venta en Urbanizacion La Reserva s/n, Sotogrande

Кадис, Сотогранде, Сотограндэ Альто, Urbanizacion La Reserva s/n
892 800 €

Espaciosde vidaLos Albares de Sotogrande CádizLOS ALBARES DE SOTOGRANDE consta d...

0
0 отзывов

Adosados en Venta en Urbanizacion La Reserva s/n, Sotogrande

Кадис, Сотогранде, Сотограндэ Альто, Urbanizacion La Reserva s/n
908 800 €

Espaciosde vidaLos Albares de Sotogrande CádizLOS ALBARES DE SOTOGRANDE consta d...

0
0 отзывов

Adosados en Venta en Urbanizacion La Reserva s/n, Sotogrande

Кадис, Сотогранде, Сотограндэ Альто, Urbanizacion La Reserva s/n
1 105 800 €

Espaciosde vidaLos Albares de Sotogrande CádizLOS ALBARES DE SOTOGRANDE consta d...

0
0 отзывов

Adosados en Venta en Urbanizacion La Reserva s/n, Sotogrande

Кадис, Сотогранде, Сотограндэ Альто, Urbanizacion La Reserva s/n
1 368 800 €

Espaciosde vidaLos Albares de Sotogrande CádizLOS ALBARES DE SOTOGRANDE consta d...

0
0 отзывов

Adosados en Venta en Urbanizacion La Reserva s/n, Sotogrande

Кадис, Сотогранде, Сотограндэ Альто, Urbanizacion La Reserva s/n
909 800 €

Espaciosde vidaLos Albares de Sotogrande CádizLOS ALBARES DE SOTOGRANDE consta d...

0
0 отзывов

Chalet adosado en venta en calle Tránsito

Кадис, Сотогранде, Сан Энрике-Гуадиаро-Пуэбло Ноно, Calle Tránsito
107 500 €

¿Quieres comprar una casa pareada en venta de 2 dormitorios en San Roque? Excele...

0
0 отзывов
Звонок

Мы используем собственные и сторонние файлы cookie для анализа использования веб-сайта и показа вам рекламы, соответствующей вашим предпочтениям, на основе профиля, созданного по вашим привычкам просмотра (например, посещенные страницы). Подробнее. Вы принимаете файлы cookie?