Terreno en Toén

Оренсе, Тоэн, Toén
35 000 €
Оставить отзыв
Урбанизируемый Тип недвижимости
1 242 m² Площадь участка
2 Строительные участки
231 m² Застройка
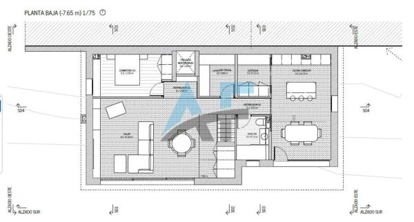
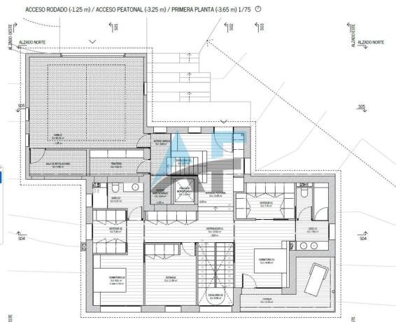
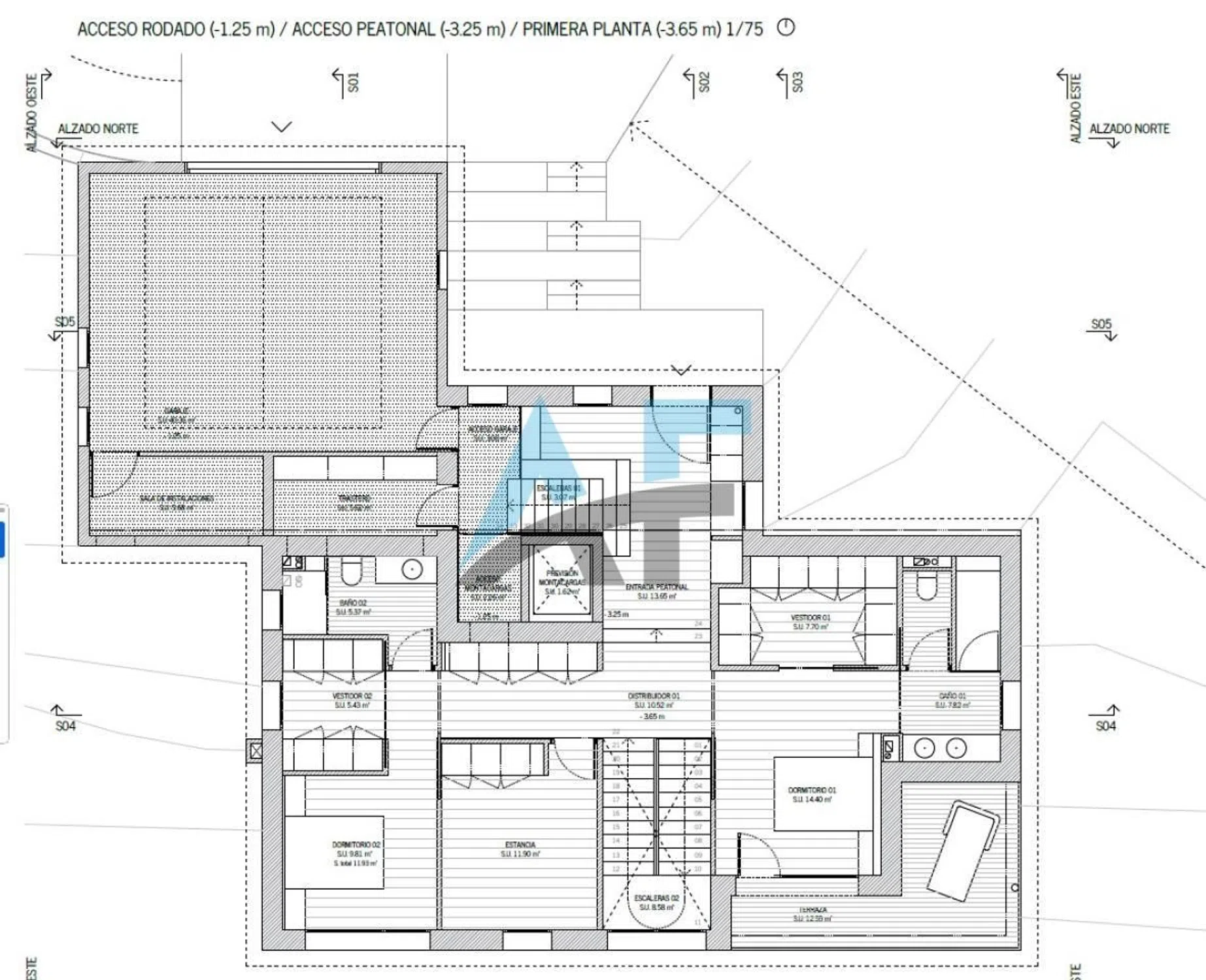
Finca urbanizable con proyecto en Moreiras (Toén), a menos de 10 minutos de Ourense ¿Estás buscando una oportunidad única de inversión cerca de Ourense? Esta finca urbanizable situada en la zona de Moreiras, en el municipio de Toén, es justo lo que necesitas. Con una excelente ubicación a menos de 5 km de A Valenzá y a apenas 10 minutos del centro de Ourense, esta propiedad combina tranquilidad, buena comunicación y un enorme potencial de desarrollo. La finca cuenta con una superficie de 1242 m² y se vende con proyecto técnico incluido para la construcción de una vivienda unifamiliar tipo chalet. Este proyecto contempla un total de 320 m² distribuidos en: 69 m² para zona de garaje, 21 m² en zona de acceso, 105 m² en la primera planta y 125 m² en la planta baja. Además, se proyecta un amplio bajo cubierta de 231 m², ideal para futuras ampliaciones o zonas de almacenaje, ocio o estudio. La propiedad dispone de acceso a todos los servicios urbanísticos: agua, luz y alcantarillado. Su fachada de aproximadamente 20 metros facilita el acceso rodado y la integración con el entorno residencial. El terreno se entrega con proyecto técnico, lo que supone un importante ahorro de tiempo y dinero para quienes deseen construir su hogar sin partir de cero. La licencia de obra no está incluida, pero el avance del proyecto permite iniciar los trámites en un plazo breve y con la seguridad de una planificación profesional ya desarrollada. Por su ubicación estratégica, sus características técnicas y su potencial de construcción, esta finca es una opción muy atractiva tanto para particulares que deseen construir su chalet a medida, como para constructores o inversores que busquen un producto listo para ejecutar a pocos minutos de Ourense. No dejes pasar esta oportunidad y contáctanos hoy mismo. Explora todas las opciones que tenemos para ti, en nuestras listas encontrarás una cartera de inmuebles actualizada y diseñada para ayudarte a encontrar la propiedad perfecta para tus necesidades. Ponemos a disposición un equipo de trabajo disponible para asesorarte en cada paso del proceso. IMPORTANTE: Si deseas más detalles sobre este anuncio, te invitamos a que nos llames; ten en cuenta que la información proporcionada es orientativa y podría estar sujeta a cambios o errores; algunas imágenes presentadas pudieran ser orientativas. Por ello, estamos a tu disposición para aclarar cualquier duda y brindarte la información más precisa. AF INMOBILIARIA - Dirección: Rúa Bedoya Nº 1, CP 32004, Ourense - Teléfono: - Sitio web: - Email: - Horario: Lunes a Viernes: 10:00 - 13:30 y 16:00 - 18:00 Síguenos en redes sociales para estar al día: - Facebook: - Instagram: - Twitter: - LinkedId: - Youtube:.

Характеристики недвижимости

Complex information

  • Тип недвижимости
    Урбанизируемый

Данные о недвижимости

  • Тип недвижимости
    Вторичка

Площади

  • Площадь участка
    1 242 m²

Base

  • Строительные участки
    2
  • Застройка
    231 m²

Удобства

Суминстро:

Канализация

Статистика рыночных цен на Terreno en Toén

Карта

Оренсе, Тоэн, Toén Поехать в это место
Оставьте отзыв о Terreno en Toén
0
0 reviews
1
0% (0)
2
0% (0)
3
0% (0)
4
0% (0)
5
0% (0)
AF Inmobiliaria | Gestión y Proyecto
35 000 €
Свяжитесь с рекламодателем

Для получения дополнительной информации свяжитесь с платформой

REF: 367979

Отзывы о Terreno en Toén
Loading...

No reviews have been left for this object yet

Ближайшие объекты

Исследуйте близлежащие объекты, которые мы обнаружили неподалеку от этого местоположения.

Terreno en camino Da Auga, 7

Оренсе, Сан-Сибрао-дас-Виньяс, Camino Da Auga, 7
55 000 €

Terreno en San Ciprian das Viñas. Es un terreno amplio y muy bien ubicado. Dispo...

0
0 отзывов

Terreno en camino de Loiro, 125

Оренсе, Барбадос, Camino de Loiro, 125
50 000 €

Se vende en Loiro 3 Parcelas y son urbanizables y colindan unas con otras, estan...

0
0 отзывов

Terreno en San Cibrao das Viñas

Оренсе, Сан-Сибрао-дас-Виньяс, San Cibrao das Viñas
28 000 €

Amplia finca de 2500 metros, de los cuales 1800 son urbanizables y 700 rústicos,...

0
0 отзывов

Terreno en Lugar Venda A-Soutopenedo, s/n

Оренсе, Сан-Сибрао-дас-Виньяс, Lugar Venda A-Soutopenedo, s/n
45 000 €

se vende finca urbanizable a pie de calle, con su documentacion y registrada, li...

0
0 отзывов

Terreno en carretera Piñor

Оренсе, Орэнсе, А Карбаллейра, Carretera Piñor
60 000 €

¿Buscas invertir en una ubicación estratégica dentro de la ciudad? Te presentamo...

0
0 отзывов

Terreno en Toén

Оренсе, Тоэн, Toén
35 000 €

Finca urbanizable con proyecto en Moreiras (Toén), a menos de 10 minutos de Oure...

0
0 отзывов

Terreno en Barbadas

Оренсе, Барбадос, Barbadas
49 000 €

FINCA EDIFICABLE EN VENTA - BARBADÁS Si estás buscando un terreno para construir...

0
0 отзывов

Terreno en Barbadas

Оренсе, Барбадос, Barbadas
84 000 €

Si buscas finca para tu proximo proyecto de vida. puede que sea esta! Finca edif...

0
0 отзывов

Terreno en Quintela - Los Pinos

Оренсе, Орэнсе, Кинтела - Лос Пинос, Quintela - Los Pinos
80 000 €

REF. 5812. -PARCELA DE CASI 4000M2 CERCA DE LAS TERMAS DE OUTARIZ. Se vende parc...

0
0 отзывов

Мы используем собственные и сторонние файлы cookie для анализа использования веб-сайта и показа вам рекламы, соответствующей вашим предпочтениям, на основе профиля, созданного по вашим привычкам просмотра (например, посещенные страницы). Подробнее. Вы принимаете файлы cookie?