Новостройка Puntal del Canal в Кория дель Рио

Севилья, Кория дель Рио, Terreno Sector Tinajerias, 6
от 129 000 €
Оставить отзыв
Площадь объекта
Количество спален
Ванные комнаты
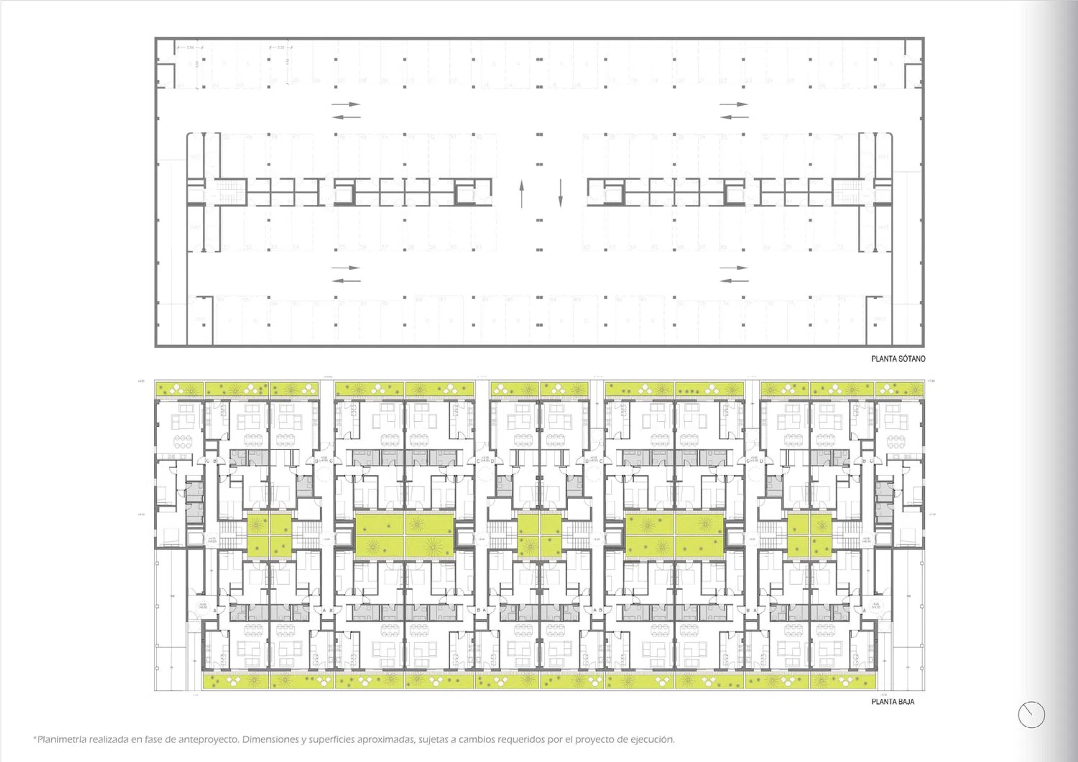
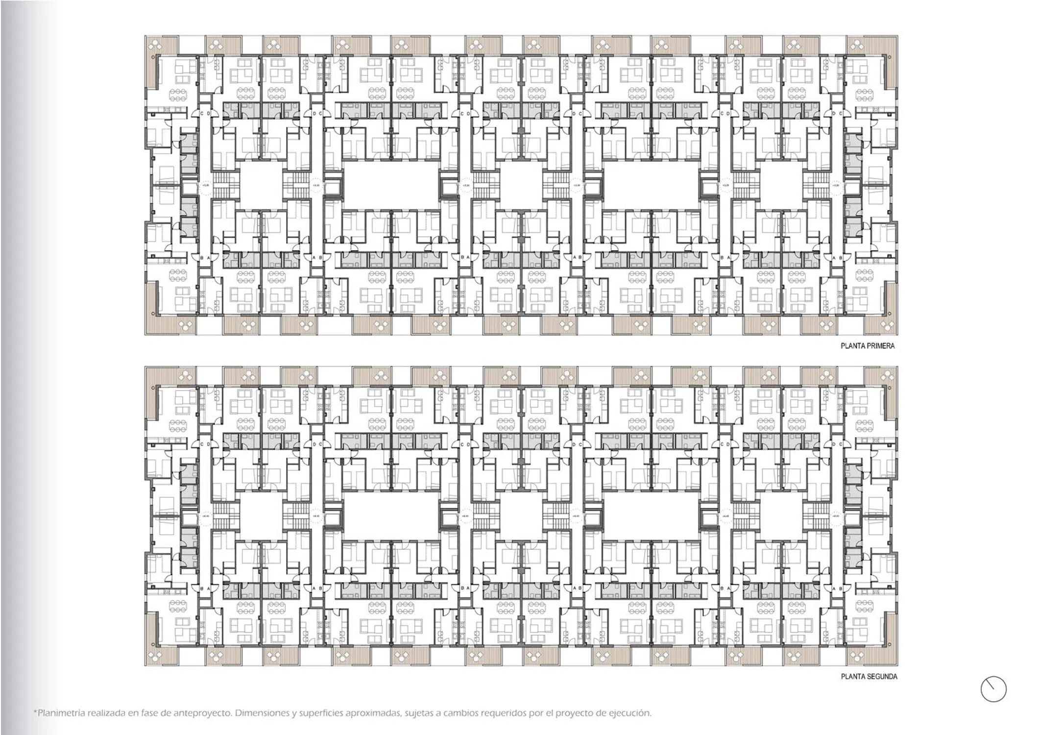
Nos complace presentar “Puntal del Canal”, una exclusiva promoción de 94 viviendas de uno, dos y tres dormitorios, ubicada en Coria del Río (Sevilla), en una zona en pleno crecimiento, ideal para quienes valoran el confort, el diseño contemporáneo y la cercanía a Sevilla capital. Situada en un entorno con todos los servicios al alcance —centros educativos, comercios, transporte público y zonas de ocio—, “Puntal del Canal” ofrece una propuesta residencial pensada para mejorar tu calidad de vida, con viviendas luminosas, funcionales y perfectamente distribuidas. Todas las viviendas disponen de espacios exteriores privados, como terrazas o patios, ideales para disfrutar del clima y el estilo de vida del sur. Además, el edificio cuenta con 21 áticos que ofrecen amplias terrazas, perfectas para quienes buscan un plus de amplitud y privacidad. El conjunto residencial incluirá plazas de garaje y trasteros, disponibles para su adquisición de forma independiente, aportando comodidad y almacenamiento adicional. Entre sus zonas comunes, “Puntal del Canal” contará con una piscina comunitaria en la cubierta del edificio, solárium y una sala para gimnasio, pensada para fomentar el bienestar y el estilo de vida saludable de sus residentes. Elija su vivienda y no pierda esta oportunidad única de estrenar un nuevo hogar en Coria del Río, en una ubicación con excelente proyección y conexión directa con Sevilla.

Топ новостройки Испании

Обратите ваше внимание на эти ЖК

10 единиц

Nature Views 2

Аликанте, Торревьеха, Лос-Балконес - Лос-Альтос дель Эден, Denia s/n
310 000 € - 379 000 €
1 единиц

Hotel en venta en Benidorm centro

Аликанте, Бенидорм, Плая де Поньенте
2 250 000 € - 2 250 000 €
32 единиц

Residencial Los Balcones De Calpe

Аликанте, Кальпе, Кальпе Пуэбло, Avenida de Madrid, 1
299 000 € - 892 125 €
7 единиц

Nature Views

Аликанте, Торревьеха, Лаго Хардин II, Avenida Denia s/n
305 000 € - 330 000 €
10 единиц

ALONIS VILLAS

Аликанте, Ла Виллахойоса / Вила Хойоса, Платха де Торрес, Partida Torres s/n
675 000 € - 775 000 €
2 единиц

Residencial Royal Beach

Аликанте, Гуардамар-дель-Сегура, побло, Miguel Hernández 102
339 500 € - 345 500 €
8 единиц

Royal Star

Аликанте, Гуардамар-дель-Сегура
224 500 € - 264 500 €
Эта информация получена из публичных источников и может быть устаревшей. Она не представляет собой связь с застройщиком.

Характеристики недвижимости

Complex information

Данные о недвижимости

  • Тип недвижимости
    Новостройка

Статистика рыночных цен на Puntal del Canal

225 000 € (1 269 €/m2)
Средняя цена на первичные Дома в городе Кория дель Рио
124 789 € (1 583 €/m2)
Средняя цена на первичные Квартиры в городе Кория дель Рио

Карта

Севилья, Кория дель Рио, Terreno Sector Tinajerias, 6 Поехать в это место
Оставьте отзыв о Puntal del Canal
0
0 reviews
1
0% (0)
2
0% (0)
3
0% (0)
4
0% (0)
5
0% (0)
Flatgest
129 000 €
Свяжитесь с рекламодателем

Для получения дополнительной информации свяжитесь с платформой

REF: 392866

Отзывы о Puntal del Canal
Loading...

No reviews have been left for this object yet

Жилье с государственной защитой (ЖГЗ) 1207 Сдача в 2025 году 1861 Сдача в 2024 году 1472 Сдача в 2026 году 1984 Сдача в 2027 году 1540 На этапе строительства 1194 В строительстве 1607 Сданный в эксплуатацию новострой 1371 Новая постройка с видом на море 1434 Будущие акции 3089 Сдача в 2022 году 1167 Сдача в 2024 Севилья 25 Сдача в 2025 году Севилья 35 В процессе строительства Севилья 31 Новые построенные объекты Севилья 24 Жилища (VPO) Севилья 27 Сдача в 2026 году Севилья 37 Сдача в 2027 году Севилья 27 Сдача в 2023 году Севилья 21 Новостройка с тренажерным залом Севилья 52 Будущие акции Севилья 59 Сдача в 2028 году Севилья 21 Жилищный кооператив Севилья 30 Новостройки с видом на море Севилья 20 На этапе планировки Севилья 20 Сдача в 2022 году Севилья 20 Сдача в 2024 году Кория дель Рио 1 Сдача в 2023 году Кория дель Рио 1 На этапе планировки Кория дель Рио 1 В процессе строительства Кория дель Рио 1 Новостройка завершена Кория дель Рио 1 Новостройка с видом на море Кория дель Рио 1 Жилища с государственной защитой (ЖГЗ) Кория дель Рио 1 Жилища ВПО Кория дель Рио 1 Сдача в 2025 году Кория дель Рио 2 Сдача в 2026 году Кория дель Рио 1 Будущие акции Кория дель Рио 2 Сдача в 2022 году Кория дель Рио 1 Сдача в 2027 году Кория дель Рио 1 Жилищный кооператив Кория дель Рио 1 Сдача в 2028 году Кория дель Рио 1

Ближайшие объекты

Исследуйте близлежащие объекты, которые мы обнаружили неподалеку от этого местоположения.

3 единиц

Obra nueva Regina en Mairena del Aljarafe

Севилья, Майрена дель Альхарефе, Новый Бульвар, Avenida de las Civilizaciones s/n
223 000 € - 332 000 €

Descubre REGINA, una promoción exclusiva con viviendas de 2, 3 y 4 dormitorios a...

0
0 отзывов
16 единиц

Новый жилой комплекс в Палома́рес-де́ль-Рио.

Севилья, Палома́рес дель Ри́о
179 100 € - 243 640 €

Недвижимость в ЖК El Palomar Светлые таунхаусы с 2 и 3 спальнями, двумя ванными...

0
0 отзывов

Obra nueva Jardines de Pozo Nuevo, Bespoke Consulting en Mairena del Aljarafe

Севилья, Майрена дель Альхарефе, Центро, Calle Pozo Nuevo, 68
-

Jardines de Pozo Nuevo es un complejo residencial formado por viviendas respetuo...

0
0 отзывов
2 единиц

Новостройка в Мэрине-дель-Альхарафе: проект "Гогарлюкс IV".

Севилья, Майрена дель Альхарефе, Новый Бульвар, Calle Astrolabio s/n
475 000 € - 485 000 €

Недвижимость в ЖК Hogarlux IV В городе Севилья предлагаются роскошные виллы ЖК H...

0
0 отзывов
10 единиц

Новостройки в южной части Мэрены дель Альхарафе.

Севилья, Майрена дель Альхарефе, Новый Бульвар, Avenida del Sur s/n
18 000 € - 305 000 €

Недвижимость в ЖК Residencial del Sur Новая недвижимость в районе Nuevo Bulevar:...

0
0 отзывов

Obra nueva Portico Mairena en Mairena del Aljarafe

Севилья, Майрена дель Альхарефе, Новый Бульвар, Calle Astrolabio , esquina Ajonjolí s/n
-

LA OBRA NUEVA QUE SIEMPRE HABÍAS SOÑADO EN MAIRENA DEL ALJARAFE Pórtico Mairena...

0
0 отзывов
8 единиц

Obra nueva Apartamentos Simon Verde en Gelves

Севилья, Гельвес
65 620 € - 119 850 €

Te presentamos una oportunidad única para adquirir tu nuevo hogar en régimen de...

0
0 отзывов
6 единиц

Obra nueva Agustin Chavez en Gelves

Севилья, Гельвес
210 000 € - 235 000 €

Descubre una exclusiva promoción de viviendas en la calle Agustín Chaves Gonzále...

0
0 отзывов
2 единиц

Obra nueva Edificio Galileo en Mairena del Aljarafe

Севилья, Майрена дель Альхарефе, Новый Бульвар, Avenida Clara Campoamor, 16
10 000 € - 10 000 €

Garajes y trasteros disponiblesSi quieres disponer de garaje y/o trastero en el...

0
0 отзывов

Мы используем собственные и сторонние файлы cookie для анализа использования веб-сайта и показа вам рекламы, соответствующей вашим предпочтениям, на основе профиля, созданного по вашим привычкам просмотра (например, посещенные страницы). Подробнее. Вы принимаете файлы cookie?