Neubau San Antón 2 in Lakuntza

Navarra, Lakuntza, Calle San Anton, 2
von 325 000 €
Bewertung hinterlassen
Grundstücksflächen
Anzahl der Schlafzimmer
Badezimmer
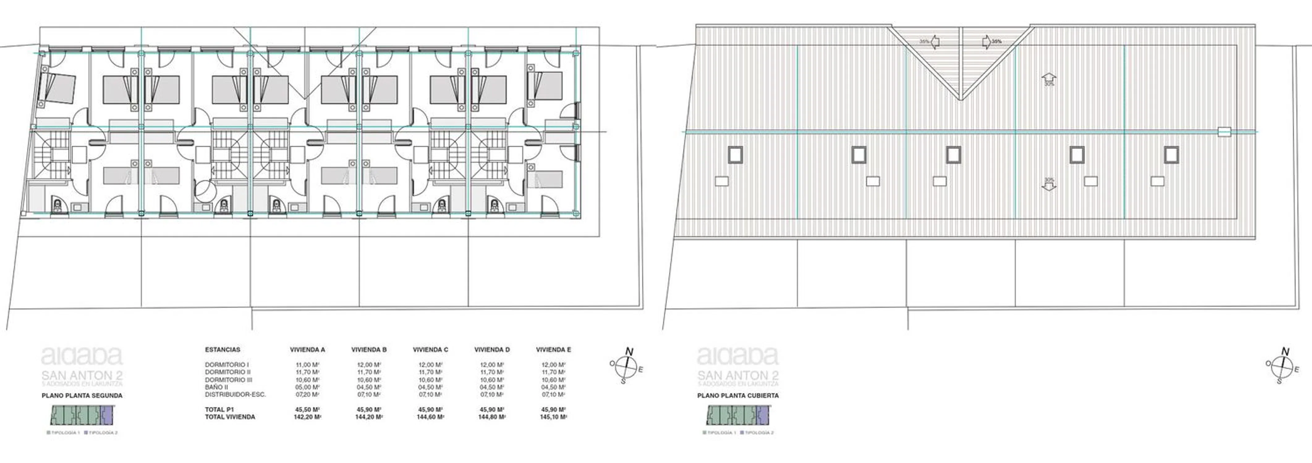
Espacios amplios, cómodos y bien aprovechados Con superficies útiles de entre 142 m2 y 145 m2, cada vivienda ofrece: 1 plaza de garaje cerrada. 1 zona de estar y 1 cocina de más de 33 m2. 3 dormitorios espaciosos, todos superiores a 10 m2. 2 baños generosos y funcionales. 1 porche de entrada y 1 terraza. 1 jardín trasero privado (mayor superficie en vivienda nº 5). Calidad, eficiencia y confort El proyecto ha sido concebido bajo criterios exigentes de eficiencia energética y sostenibilidad. Destacan las siguientes características: Carpinterías con rotura de puente térmico y persianas enrollables de aluminios. Espacios ventilados y luminosos. Instalación completa de sistema de aerotermia y suelo radiante. 5 viviendas adosadas en Lakuntza En la localidad navarra de Lakuntza, en pleno corazón del valle de Sakana, nace una nueva promoción compuesta por 5 unifamiliares adosadas proyectadas con mimo, funcionalidad y coherencia con el entorno. Las viviendas representan una oportunidad única para disfrutar de un estilo de vida tranquilo, moderno y conectado con la naturaleza. Diseñadas por el equipo Arkitale, el proyecto responde a criterios de sostenibilidad, eficiencia y armonía estética con el entorno urbano de Lakuntza. La volumetría del conjunto está compuesta por muros hastiales en piedra natural, retranqueos y materiales nobles como madera y aluminio, creando una imagen sobria y elegante. La estructura de cubierta inclinada a dos aguas con aleros forrados en madera y barandillas de vidrio aportan una estética contemporánea dentro de un lenguaje constructivo tradicional. Las viviendas se distribuyen en tres plantas. En planta baja, la vivienda dispone de un acceso peatonal y otro rodado. El garaje cerrado incluye espacio técnico para instalaciones, zona de almacenamiento independiente y área de tendedero, todo ello pensado para maximizar la funcionalidad sin renunciar al orden ni al confort. En planta primera, se organiza el área de día en un único espacio diáfano que integra cocina, comedor y salón, con doble orientación para favorecer la ventilación cruzada y el aprovechamiento de la luz natural. Desde el salón se accede a una terraza volada, generosa y abierta al exterior. Esta planta incluye también un baño completo. En planta segunda, bajo una cubierta inclinada que aporta carácter y calidez, se distribuyen tres dormitorios bien proporcionados y un baño. La solución de cubierta a dos aguas permite alturas variables que enriquecen el espacio interior y favorecen la iluminación natural. Precio desde 325.000€ + IVA.

Hervorgehobene Aktionen in Spanien

10 Einheiten

Nature Views 2

Alicante, Torrevieja, Los Balcones - Los Altos del Edén, Denia s/n
310 000 € - 379 000 €
1 Einheiten

Hotel en venta en Benidorm centro

Alicante, Benidorm, Playa de Poniente
2 250 000 € - 2 250 000 €
28 Einheiten

Residencial Los Balcones De Calpe

Alicante, Kalpe, Calpe Pueblo, Avenida de Madrid, 1
299 000 € - 892 125 €
4 Einheiten

Nature Views

Alicante, Torrevieja, Lago Jardín II, Avenida Denia s/n
309 000 € - 330 000 €
5 Einheiten

ALONIS VILLAS

Alicante, La Villajoyosa / Vila Joiosa, Platja de Torres, Partida Torres s/n
675 000 € - 775 000 €
1 Einheiten

Residencial Royal Beach

Alicante, Guardamar del Segura, Dorf, Miguel Hernández 102
349 500 € - 349 500 €
7 Einheiten

Royal Star

Alicante, Guardamar del Segura
229 500 € - 269 500 €
Diese Informationen stammen aus öffentlichen Quellen und können veraltet sein. Sie stellen keine Verbindung zum Bauträger dar.

Merkmale der Immobilie

Complex information

Eigenschaftsdaten

  • Art der Immobilie
    Neubau

Statistik der Marktpreise für San Antón 2

Karte

Navarra, Lakuntza, Calle San Anton, 2 Zu diesem Ort gehen
Eine Bewertung über San Antón 2 abgeben
0
0 Bewertungen
1
0% (0)
2
0% (0)
3
0% (0)
4
0% (0)
5
0% (0)
ALDABA
325 000 €
Kontakt zum Inserenten

Für weitere Informationen kontaktieren Sie bitte die Plattform

REF: 449599

Bewertungen über San Antón 2
Loading...

No reviews have been left for this object yet

Nächstgelegene Objekte

Entdecken Sie nahegelegene Immobilien, die wir in unmittelbarer Nähe zu diesem Standort entdeckt haben

San Antón 2

Navarra, Lakuntza, Calle San Anton, 2
-

Espacios amplios, cómodos y bien aprovechados Con superficies útiles de entre 14...

0
0 Bewertungen

Wir verwenden eigene und Drittanbieter-Cookies, um die Nutzung der Website zu analysieren und Ihnen Werbung zu zeigen, die auf der Grundlage eines aus Ihren Surfgewohnheiten erstellten Profils mit Ihren Vorlieben übereinstimmt (z. B. besuchte Seiten). Mehr Informationen. Akzeptieren Sie Cookies?