Neubau Urbanización El Bosque in Chiva

Valencia, Chiva, Der Wald, Urbanización El Bosque, Calle 23, 411
von 1 400 000 €
Bewertung hinterlassen
Grundstücksflächen
Anzahl der Schlafzimmer
Badezimmer
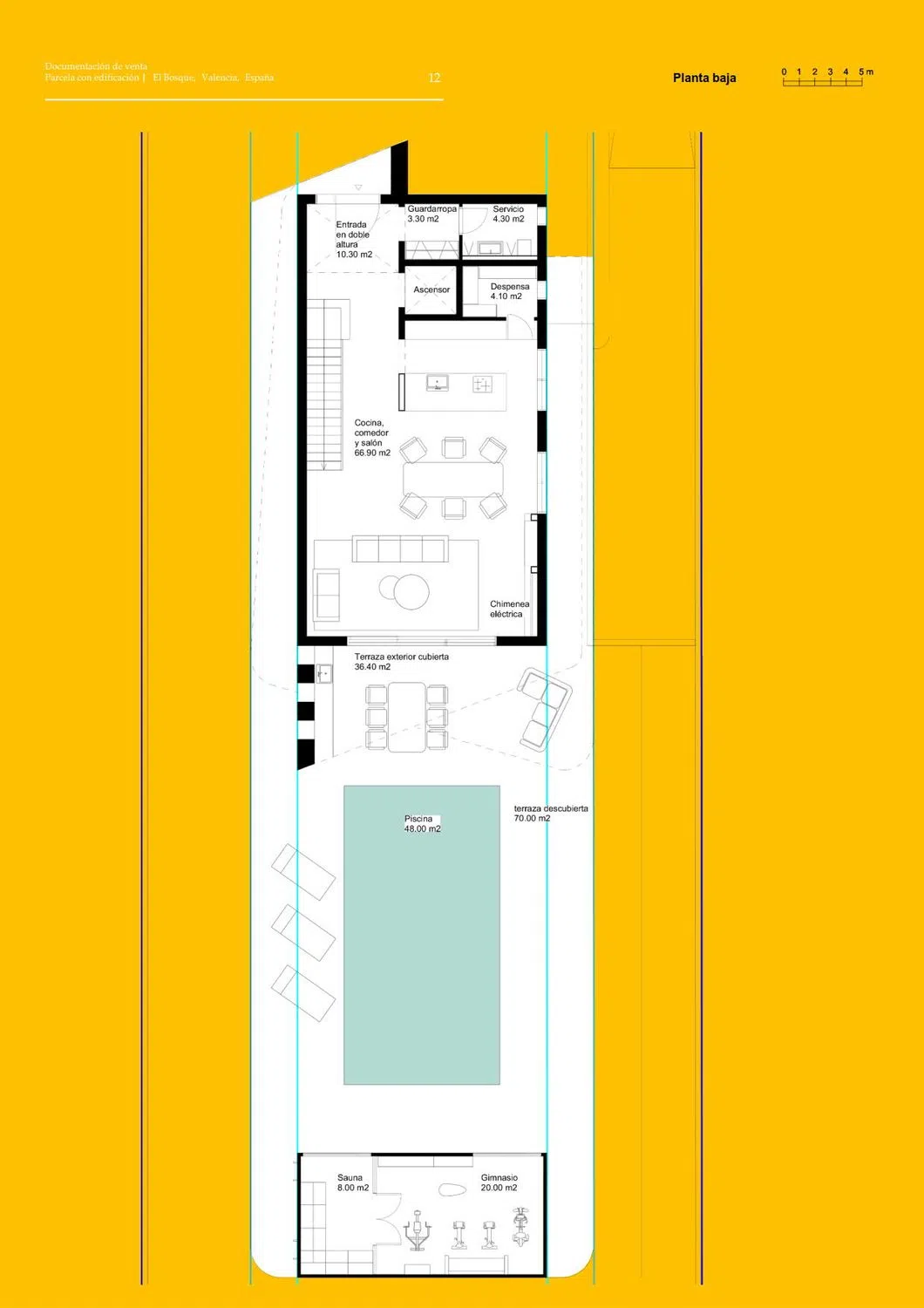
Exclusiva villa de diseño con piscina junto a club de golf en Valencia – Urbanización privada con seguridad 24h A pocos minutos del mar, disfrute del auténtico clima mediterráneo con cerca de 300 días de sol al año y una temperatura media de 21 grados. La urbanización privada El Bosque es una de las más prestigiosas y seguras de la región de Valencia. Ofrece máxima tranquilidad, privacidad y una elevada calidad de vida gracias a su servicio de seguridad 24 horas. Se encuentra a tan solo 20 minutos en coche del aeropuerto internacional de Valencia. La propiedad se sitúa en una gran parcela de aproximadamente 1.300 m² en la Calle 23, una de las zonas más tranquilas de la urbanización, y al mismo tiempo próxima a todos los servicios: restaurantes, club social, supermercados, gimnasio y completas instalaciones deportivas de golf, tenis y otras disciplinas. La vivienda ofrece 357 m² construidos, distribuidos en tres plantas conectadas por ascensor para mayor comodidad. Además, dispone de un edificio anexo independiente con gimnasio y sauna, así como de una amplia piscina de aproximadamente 10 x 5 m situada entre ambos cuerpos. Los espacios amplios y luminosos garantizan una experiencia de vida moderna y de alto nivel. Destacan especialmente: Arquitectura atractiva: Estética contemporánea con grandes ventanales y un diseño singular que marca la diferencia. Amplia piscina privada: Ideal para momentos de relax y diversión en familia. Varios balcones y terrazas: Diferentes espacios exteriores con agradables vistas para disfrutar en cualquier ocasión. Entrada en doble altura: Que genera un efecto “wow” en todo aquel que accede a la casa. Acabados de alta calidad: Suelos de madera, escalera abierta y moderna iluminación que aportan calidez y sofisticación. Máxima funcionalidad: Garaje y amplias zonas de aparcamiento para su total comodidad. Disfrute de días soleados en una villa de lujo que ofrece todo el confort imaginable, a solo unos minutos de Valencia, la nueva ciudad de referencia para expatriados y jubilados, así como de sus playas y del aeropuerto internacional. Ubicada en un entorno tranquilo y familiar con múltiples servicios, esta propiedad combina a la perfección el estilo de vida mediterráneo con una calidad, fiabilidad y solidez inigualable. ¡No deje pasar esta oportunidad! — ¡Solo hay una casa así a la venta!

Hervorgehobene Aktionen in Spanien

10 Einheiten

Nature Views 2

Alicante, Torrevieja, Los Balcones - Los Altos del Edén, Denia s/n
310 000 € - 379 000 €
1 Einheiten

Hotel en venta en Benidorm centro

Alicante, Benidorm, Playa de Poniente
2 250 000 € - 2 250 000 €
28 Einheiten

Residencial Los Balcones De Calpe

Alicante, Kalpe, Calpe Pueblo, Avenida de Madrid, 1
299 000 € - 892 125 €
4 Einheiten

Nature Views

Alicante, Torrevieja, Lago Jardín II, Avenida Denia s/n
309 000 € - 330 000 €
5 Einheiten

ALONIS VILLAS

Alicante, La Villajoyosa / Vila Joiosa, Platja de Torres, Partida Torres s/n
675 000 € - 775 000 €
1 Einheiten

Residencial Royal Beach

Alicante, Guardamar del Segura, Dorf, Miguel Hernández 102
349 500 € - 349 500 €
7 Einheiten

Royal Star

Alicante, Guardamar del Segura
229 500 € - 269 500 €
Diese Informationen stammen aus öffentlichen Quellen und können veraltet sein. Sie stellen keine Verbindung zum Bauträger dar.

Merkmale der Immobilie

Complex information

Eigenschaftsdaten

  • Art der Immobilie
    Neubau

Statistik der Marktpreise für Urbanización El Bosque

501 105 € (2 133 €/m2)
Durchschnittspreis für primäre Häuser in der Stadt Chiva

Karte

Valencia, Chiva, Der Wald, Urbanización El Bosque, Calle 23, 411 Zu diesem Ort gehen
Eine Bewertung über Urbanización El Bosque abgeben
0
0 Bewertungen
1
0% (0)
2
0% (0)
3
0% (0)
4
0% (0)
5
0% (0)
Hector Alamar Architects
1 400 000 €
Kontakt zum Inserenten

Für weitere Informationen kontaktieren Sie bitte die Plattform

REF: 430874

Bewertungen über Urbanización El Bosque
Loading...

No reviews have been left for this object yet

Nächstgelegene Objekte

Entdecken Sie nahegelegene Immobilien, die wir in unmittelbarer Nähe zu diesem Standort entdeckt haben

Residencial Villas el Bosque

Valencia, Chiva, Der Wald, Calle Urbanización Bosque U12, 408 s/n
-

7 UNIFAMILIARES INDEPENDIENTES EN URBANIZACIÓN EL BOSQUE, VALENCIASU UBICACIÓN•U...

0
0 Bewertungen
2 Einheiten

Residencial River Dee

Valencia, Chiva, Der Wald, Urbanización El Bosque U12, U14 y C, 16
342 000 € - 361 000 €

Immobilien in Residencial River Dee Ein idyllischer Ort zum Leben. Hier präsenti...

0
0 Bewertungen
1 Einheiten

Villas El Bosque

Valencia, Chiva, Der Wald, El BOSQUE U12, 139
875 000 € - 875 000 €

Immobilien in Villas El Bosque In der exklusiven Urbanisation El Bosque in Chiv...

0
0 Bewertungen

El Bosque 06

Valencia, Chiva, Der Wald, El bosque s/n
-

La Urbanización El Bosque cuenta con seguridad privada y acceso controlado por b...

0
0 Bewertungen
7 Einheiten

JARDINES DEL BOSQUE

Valencia, Chiva, Der Wald, Calle urbanización el bosque s/n
395 000 € - 525 000 €

Immobilien in JARDINES DEL BOSQUE Jardines del Bosque liegt in einem malerische...

0
0 Bewertungen

en El Bosque

Valencia, Chiva, Der Wald, Calle Urbanizacion Bosque, 140
-

Immobilien in El Bosque Diese 6 modernen Einfamilienhäuser befinden sich in der...

0
0 Bewertungen
10 Einheiten

El Bosque Golf Village

Valencia, Chiva, Der Wald, Calle 22, Urbanización el Bosque Parcela, 390
467 000 € - 526 000 €

Immobilien in El Bosque Golf Village El Bosque Golf Village in Chiva bietet die...

0
0 Bewertungen

Casa Nua

Valencia, Chiva, Der Wald, URBANIZACIÓN EL BOSQUE, CALLE 19, 245
-

SE VENDE – PROYECTO ARQUITECTÓNICO EXCLUSIVO EN LA URBANIZACIÓN EL BOSQUE, VALEN...

0
0 Bewertungen

Urbanización El Bosque

Valencia, Chiva, Der Wald, Urbanización El Bosque, Calle 23, 411
-

Exclusiva villa de diseño con piscina junto a club de golf en Valencia – Urbaniz...

0
0 Bewertungen

Wir verwenden eigene und Drittanbieter-Cookies, um die Nutzung der Website zu analysieren und Ihnen Werbung zu zeigen, die auf der Grundlage eines aus Ihren Surfgewohnheiten erstellten Profils mit Ihren Vorlieben übereinstimmt (z. B. besuchte Seiten). Mehr Informationen. Akzeptieren Sie Cookies?