Terreno en avenida Sorolla, 23

Alicante, La Nucia, Varadero, Avenida Sorolla, 23
330 000 €
Beoordeling achterlaten
Stedelijk Type eigendom
800 m² Oppervlakte van het terrein

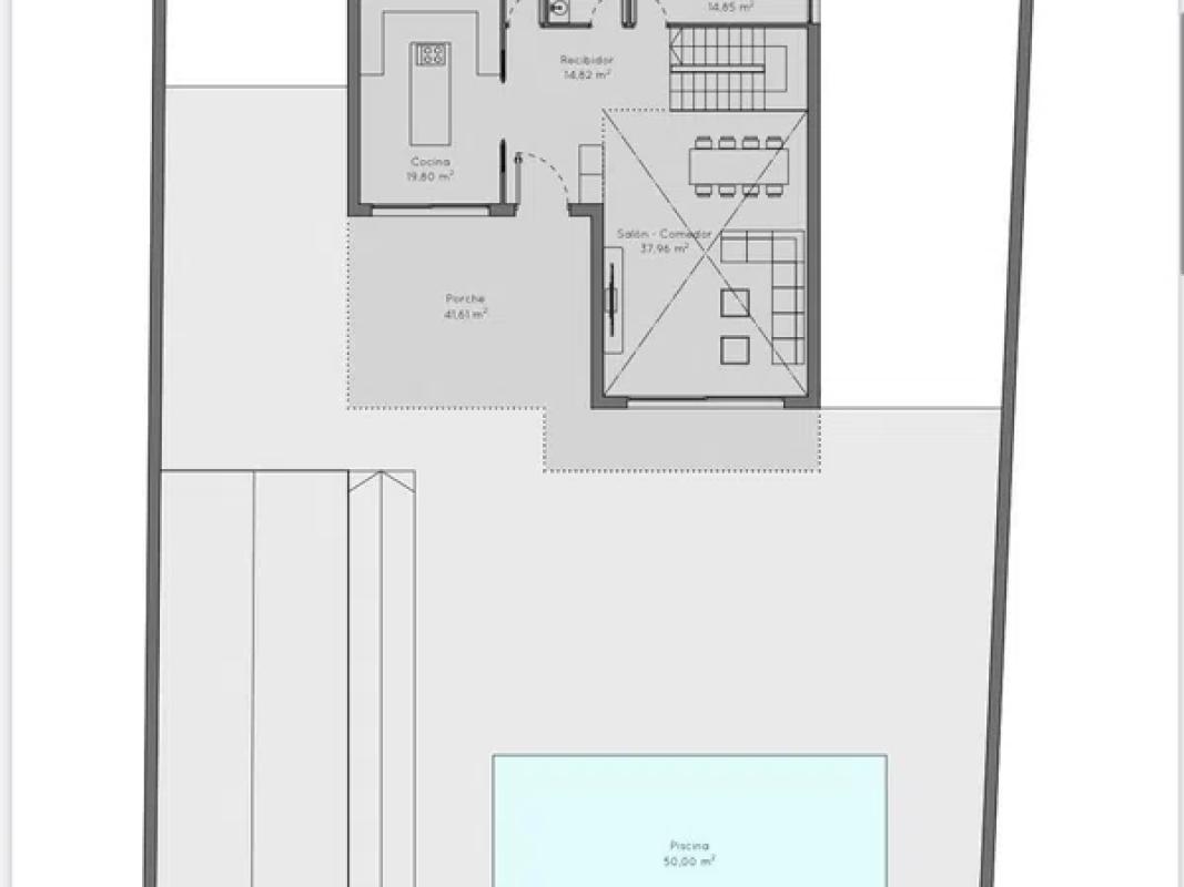
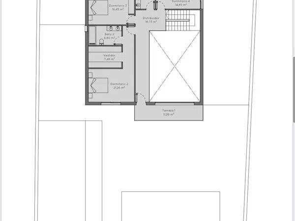
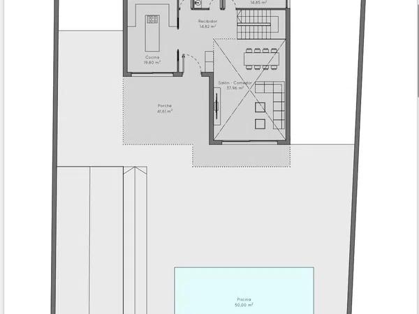
Te koop: perceel van 800 m² met een basisproject voor een woning in een van de meest exclusieve urbanisaties in La Nucía. Dit is een unieke kans voor wie zijn huis wil bouwen in een rustige en schilderachtige omgeving, met uitstekende infrastructuur en gemakkelijke toegang tot de hoofdwegen.

Voordelen van de aanbieding: Perceel van 800 m², ideaal voor het creëren van een comfortabele en ruime woning. Basisproject voor woning dat kan worden aangepast aan uw wensen en behoeften. Exclusieve urbanisatie, bekend om zijn veiligheid, rust en privacy. Adembenemende uitzichten op de bergen en de zee, frisse lucht en natuurlijke omgeving. Uitstekende locatie: dichtbij stranden, winkels, restaurants en scholen.

MIS DEZE KANS NIET om eigenaar te worden van een perceel in een van de meest gewilde locaties aan de Costa Blanca!

Voor meer informatie en het plannen van een bezoek, aarzel dan niet om contact met ons op te nemen.

Kenmerken

Complex information

  • Type eigendom
    Stedelijk

Gegevens van het onroerend goed

  • Type onroerend goed
    Tweedehands

Oppervlakten

  • Oppervlakte van het terrein
    800 m²

Marktprijstatistieken voor Terreno en avenida Sorolla, 23

Kaart

Alicante, La Nucia, Varadero, Avenida Sorolla, 23 Naar deze locatie gaan
Laat een beoordeling achter over Terreno en avenida Sorolla, 23
0
0 beoordelingen
1
0% (0)
2
0% (0)
3
0% (0)
4
0% (0)
5
0% (0)
Spain Time Realty
330 000 €
Contact adverteerder

Neem voor meer informatie contact op met het platform

REF: 159308

Beoordelingen over Terreno en avenida Sorolla, 23
Loading...

No reviews have been left for this object yet

Dichtstbijzijnde woningen

Verken nabijgelegen eigendommen die we hebben ontdekt in de buurt van deze locatie

Terreno en venta en calle Rei Jaume I

Alicante, Finestrat, Cala de Finestrat, Calle Rei Jaume I
1 000 100 €

Onroerend goed in Terreno en venta in calle Rei Jaume I Solar te koop gelegen...

0
0 beoordelingen

Terreno en venta en calle Sella

Alicante, Finestrat, Cala de Finestrat, Calle Sella
1 450 000 €

Op een aantrekkelijke locatie in de stad Finestrat, provincie Alicante, vindt u...

0
0 beoordelingen

Terreno en venta en glorieta de los Carrascos

Alicante, Benidorm, Stedelijk centrum, Glorieta de los Carrascos
346 500 €

Onroerend goed in Terreno en venta en glorieta de los Carrascos Suelo Urbanizab...

0
0 beoordelingen

Terreno en Playa de Poniente

Alicante, Benidorm, Playa de Poniente, Playa de Poniente
1 000 000 €

Onroerend goed in Terreno en Playa de Poniente Terreno van ongeveer 1.272 m² voo...

0
0 beoordelingen

Terreno en calle Florencia

Alicante, Polop, La Alberca, Calle Florencia
713 800 €

Onroerend goed in Terreno en calle Florencia Te koop: een set van 10 percelen me...

0
0 beoordelingen

Terreno en calle Llevant, 87

Alicante, Benidorm, Pueblo Poniente, Calle Llevant, 87
299 000 €

**Exclusiviteit in La Nucia: Uw Privé Oasis met Uitzicht op Zee** Profiteer van...

0
0 beoordelingen

Terreno en Pueblo Levante

Alicante, Benidorm, Pueblo Levante, Pueblo Levante
990 000 €

Onroerend goed in Terreno en Pueblo Levante Unieke Kans: Verkoop van Project en...

0
0 beoordelingen

Terreno en avenida Sorolla, 23

Alicante, La Nucia, Varadero, Avenida Sorolla, 23
330 000 €

Te koop: perceel van 800 m² met een basisproject voor een woning in een van de m...

0
0 beoordelingen

Terreno en La Nucia Pueblo

Alicante, La Nucia, La Nucia Pueblo, La Nucia Pueblo
210 000 €

Magnifiek perceel met een bouwvergunning in La Nucía dorp naast het Jeugdcentrum...

0
0 beoordelingen
Bel

We gebruiken onze eigen cookies en die van derden om het gebruik van de website te analyseren en je advertenties te tonen die zijn afgestemd op je voorkeuren, op basis van een profiel dat is gemaakt op basis van je browsegedrag (bijvoorbeeld bezochte pagina's). Meer informatie. Accepteer je cookies?