Verkoop van duplex in Calle Rio Jarama , 10, Torrejón de Ardoz

Madrid, Torrejón de Ardoz, Sureste, Calle Rio Jarama , 10
Uitverkopen
Beoordeling achterlaten
Duplexen Type eigendom
2024 Opleveringsjaar
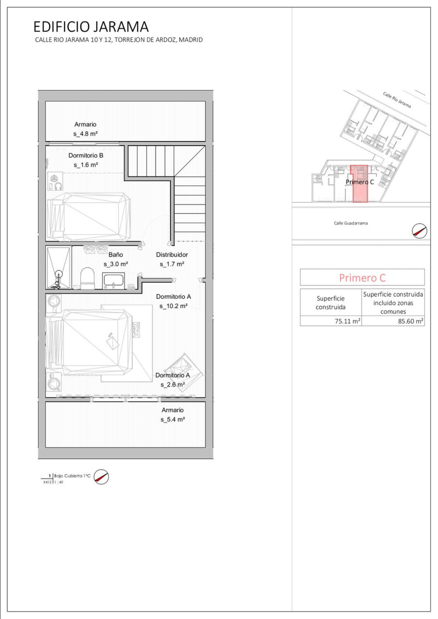
86 m² gebouwde m2
2 Badkamers
2 Slaapkamers
In aanbouwing Status
QUALITY KEYS INMOBILIARIOS Madrid, Valdebebas, comercializa LAS SEIS ÚLTIMAS VIVIENDAS DE 2 DORMITORIOS de este edificio de viviendas impecables de uso residencial con división horizontal de cada una de ellas para formato RENT TO BUILD o cliente finalista. 13 viviendas, 1 y 2 dormitorios, más 10 plazas de garaje, en urbanización cerrada con supresión de barreras arquitectónicas y máxima sostenibilidad energética, en Torrejón de Ardoz-Madrid-28850, calle Río Jarama número 10. Obras iniciadas, plazo de entrega aproximado, octubre de 2024. MAS DEL 50% DE LA PROMOCIÓN VENDIDA.Edificio muy sostenible energéticamente hablando, con un bajo coste de mantenimiento energético. De las 13 viviendas, 2 son de un dormitorio y 11 de dos las cuales 8 son dúplex. La parcela sobre la que está el edificio tiene forma poligonal y acceso desde calle Río Jarama, con trasera a calle Guadarrama. La sostenibilidad como tendencia en inmobiliario y reto dentro de la regeneración del parque español. La eficiencia energética y la sostenibilidad son elementos fundamentales en el diseño de este edificio, que se ajustará a los estándares que se establecen para alcanzar un nivel Excellent. Calificación letra A. Este edificio integra beneficios para los habitantes de sus viviendas, reduciendo los costes de mantenimiento, mejorando los niveles de bienestar y confort, reduciendo así la huella ambiental, creando hogares modernos, funcionales y exclusivos, con distribución optima y muy buenos acabados. Viviendas construidas bajo estándar PASSIVHAUS, consumo casi nulo aplicando criterios de optimización en, demanda de calefacción, demanda de refrigeración, demanda en energía primaria y estanqueidad. Climatización mediante fancoil de tipo mural con un sistema de producción de AEROTERMIA con sistema de ventilación mecánica de doble flujo con recuperación de calor. El edificio tiene una planta de producción FOTOVOLTAICA para dar cobertura parcial a los sistemas centralizados del edificio. Ideal tanto para inversor, Build To Rent (BTR). GRAN OPORTUNIDAD DE INVERSION.Está situado en una zona totalmente consolidada y estratégica, con un enclave privilegiado, en el pueblo de Torrejón de Ardoz, cerca del centro, con magnificas dotaciones de infraestructuras y servicios, con supermercados, centros comerciales, zonas de ocio, parques, transporte público, centros educativos (colegios e institutos), centros sanitarios, comercio de proximidad, restauración, área empresarial, gimnasios, etc., a media hora de Madrid en transporte privado o público, perfectamente comunicada, muy cerca del pulmón verde de esta localidad, el Parque Europa, con una extensión de 233.000 m². Es un municipio con una gran proyección de crecimiento y servicios de la Comunidad de Madrid, ubicado en el eje de la A2, en el conocido como Corredor del Henares y situado en un punto estratégico cercano al Aeropuerto Adolfo Suárez Madrid Barajas. Destaca como zona de gran importancia a nivel logístico, con grandes empresas situadas en la zona. Los inmuebles en Torrejón de Ardoz se benefician de medios de transporte como bus, metro y tren de cercanías. También cuenta con varios nodos de transporte que motivan la actividad comercial y residencial, haciendo de Torrejón de Ardoz un área atractiva tanto para vivir como para trabajar. El Corredor del Henares posiblemente será el futuro motor económico y logístico de la Comunidad de Madrid.

Kenmerken

Complex information

  • Wooncomplex
    Edificio Jarama
  • Type eigendom
    Duplexen

Projectinformatie / Werkstatus

  • Opleveringsjaar
    2024
  • Status
    In aanbouwing

Gegevens van het onroerend goed

  • Slaapkamers
    2
  • Badkamers
    2
  • gebouwde m2
    86 m²
  • Type onroerend goed
    Nieuwbouw

Energiecertificering

  • Energielabel
    A

Faciliteiten

Woonvoorzieningen:

Meubels
Verwarming

In gebouw:

Lift
Sportschool
Bar
Spa

Marktprijstatistieken voor Dúplex en venta en calle Rio Jarama , 10

Kaart

Madrid, Torrejón de Ardoz, Sureste, Calle Rio Jarama , 10 Naar deze locatie gaan
Laat een beoordeling achter over Dúplex en venta en calle Rio Jarama , 10
0
0 beoordelingen
1
0% (0)
2
0% (0)
3
0% (0)
4
0% (0)
5
0% (0)
Edificio Jarama
Wooncomplex
Uitverkopen
Contact adverteerder

Neem voor meer informatie contact op met het platform

REF: 2959

Beoordelingen over Dúplex en venta en calle Rio Jarama , 10
Loading...

No reviews have been left for this object yet

Dichtstbijzijnde woningen

Verken nabijgelegen eigendommen die we hebben ontdekt in de buurt van deze locatie

Duplexes en Venta en Calle Rio Jarama , 10, Torrejón de Ardoz

Madrid, Torrejón de Ardoz, Sureste, Calle Rio Jarama , 10
199 000 €

QUALITY KEYS INMOBILIARIOS Madrid, Valdebebas, comercializa LAS SEIS ÚLTIMAS VIV...

0
0 beoordelingen

Duplexes en Venta en Calle Rio Jarama , 10, Torrejón de Ardoz

Madrid, Torrejón de Ardoz, Sureste, Calle Rio Jarama , 10
194 000 €

QUALITY KEYS INMOBILIARIOS Madrid, Valdebebas, comercializa LAS SEIS ÚLTIMAS VIV...

0
0 beoordelingen

Duplexes en Venta en Calle Rio Jarama , 10, Torrejón de Ardoz

Madrid, Torrejón de Ardoz, Sureste, Calle Rio Jarama , 10
204 000 €

QUALITY KEYS INMOBILIARIOS Madrid, Valdebebas, comercializa LAS SEIS ÚLTIMAS VIV...

0
0 beoordelingen

Obra nueva Residencial Cañada en San Fernando de Henares

Madrid, San Fernando de Henares, Centrum, Calle de la era, 31
205 000 €

OBRA NUEVA DE VIVIENDAS EN SAN FERNANDO DE HENARES (Madrid)8 Viviendas de lujo d...

0
0 beoordelingen

Obra nueva Residencial Cañada en San Fernando de Henares

Madrid, San Fernando de Henares, Centrum, Calle de la era, 31
233 700 €

OBRA NUEVA DE VIVIENDAS EN SAN FERNANDO DE HENARES (Madrid)8 Viviendas de lujo d...

0
0 beoordelingen

Obra nueva Residencial Cañada en San Fernando de Henares

Madrid, San Fernando de Henares, Centrum, Calle de la era, 31
248 500 €

OBRA NUEVA DE VIVIENDAS EN SAN FERNANDO DE HENARES (Madrid)8 Viviendas de lujo d...

0
0 beoordelingen

Dúplex en venta en calle Malala Yousafzai, 8

Madrid, Torrejón de Ardoz, Noreste, Calle Malala Yousafzai, 8
339 229 €

SOTO DE TORREJON RESIDENCIAL, S. COOP. Viviendas con Protección Pública de Preci...

0
0 beoordelingen

Dúplex en venta en calle Malala Yousafzai, 8

Madrid, Torrejón de Ardoz, Noreste, Calle Malala Yousafzai, 8
271 433 €

SOTO DE TORREJON RESIDENCIAL, S. COOP. Viviendas con Protección Pública de Preci...

0
0 beoordelingen

Dúplex en venta en calle Malala Yousafzai, 8

Madrid, Torrejón de Ardoz, Noreste, Calle Malala Yousafzai, 8
318 629 €

SOTO DE TORREJON RESIDENCIAL, S. COOP. Viviendas con Protección Pública de Preci...

0
0 beoordelingen

We gebruiken onze eigen cookies en die van derden om het gebruik van de website te analyseren en je advertenties te tonen die zijn afgestemd op je voorkeuren, op basis van een profiel dat is gemaakt op basis van je browsegedrag (bijvoorbeeld bezochte pagina's). Meer informatie. Accepteer je cookies?