Terreno en calle Rosarito, 6

Malaga, Málaga, Centrum, Calle Rosarito, 6
950 000 €
Beoordeling achterlaten
Stedelijk Type eigendom
348 m² Oppervlakte van het terrein
2 Bebouwbare percelen
1088 Bouwvolume
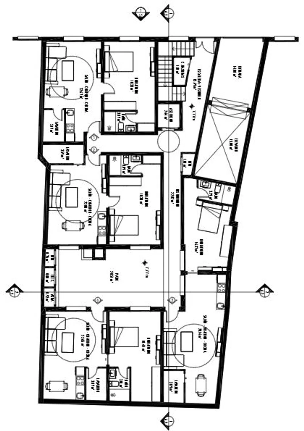
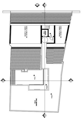
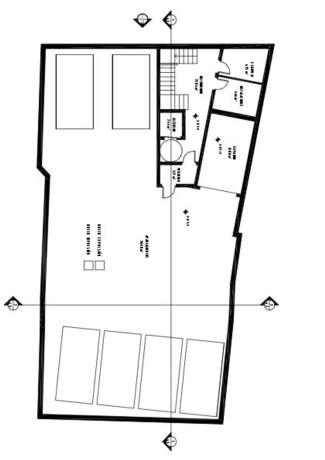
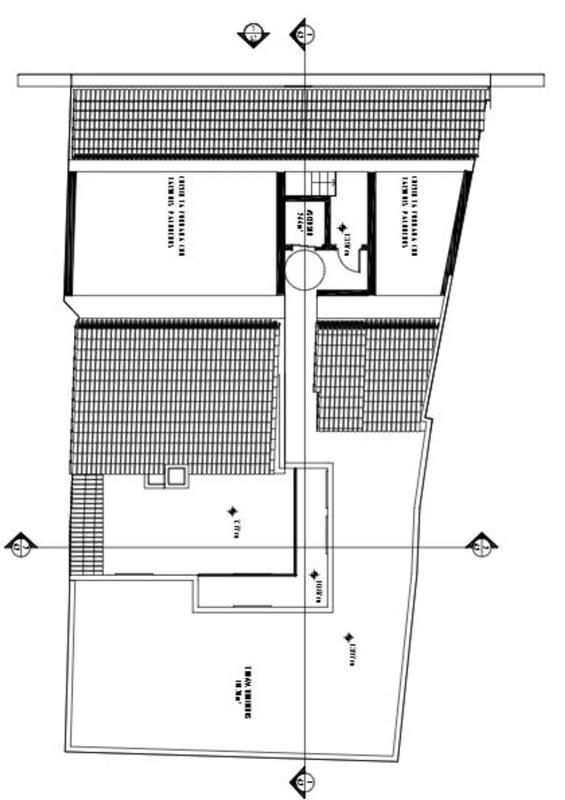
Oportunidad de negocio Suelo de 348 m2 en el que se pueden construir 1088 m2 de techo en el entorno del centro histórico de Málaga en el que se pueden construir 8 viviendas. Es también susceptible de hacer el cambio de uso a turístico para usar el edificio como hotelero. Dispone de licencia de obra al proyecto básico y se está redactando ya el proyecto de ejecución. La fase de arqueología está acabada al 100%, con informes favorables del técnico responsable y de cultura. En el proyecto hay un sótano para 4 aparcamientos o para destinarlo a trasteros, dado que las plazas de aparcamiento no son obligatorias en la zona. La propiedad dispone de un solar adyacente que se puede utilizar para acopio de materiales, lo que facilita mucho el desarrollo de la edificación que hay que hacer en él. Ideal para invertir tanto para dedicarlo al alquiler o para su venta final, dado el alto valor de las viviendas en la zona. Se adjuntan fotos del entorno para poder comprobar el cambio que está experimentando la zona, que se ha consolidado como extensión del centro de Málaga.

Kenmerken

Complex information

  • Type eigendom
    Stedelijk

Gegevens van het onroerend goed

  • Type onroerend goed
    Tweedehands

Oppervlakten

  • Oppervlakte van het terrein
    348 m²

Base

  • Minimale verkoopperceel
    348 m²
  • Bebouwbare percelen
    2
  • Bouwvolume
    1088

Faciliteiten

In gebouw:

Souterrain

Marktprijstatistieken voor Terreno en calle Rosarito, 6

Kaart

Malaga, Málaga, Centrum, Calle Rosarito, 6 Naar deze locatie gaan
Laat een beoordeling achter over Terreno en calle Rosarito, 6
0
0 beoordelingen
1
0% (0)
2
0% (0)
3
0% (0)
4
0% (0)
5
0% (0)
Inmobiliaria Habitar
950 000 €
Contact adverteerder

Neem voor meer informatie contact op met het platform

REF: 366388

Beoordelingen over Terreno en calle Rosarito, 6
Loading...

No reviews have been left for this object yet

Dichtstbijzijnde woningen

Verken nabijgelegen eigendommen die we hebben ontdekt in de buurt van deze locatie

Terreno en venta en avenida de José Ortega y Gasset, 131

Malaga, Málaga, Cruz de Humilladero, Avenida de José Ortega y Gasset, 131
2 300 000 €

Se venden tres magnificas parcelas (practicamente urbanizadas) de suelo finalist...

0
0 beoordelingen

Terreno en venta en calle Cueva del romeral

Malaga, Málaga, Campanillas, Calle Cueva del romeral
74 900 €

Solar edificable en la Huertecilla, barriada de Campanillas. Se encuentra situad...

0
0 beoordelingen

Terreno en venta en calle Petronio

Malaga, Málaga, Puerto de la Torre, Calle Petronio
90 000 €

se vende solar urbano de 239m2 con proyecto y licencia de obras para un chalet i...

0
0 beoordelingen

Terreno en calle Bouganvilleas

Malaga, Málaga, Este, Calle Bouganvilleas
680 000 €

Een unieke kans om het huis van je dromen te bouwen in een van de meest prestigi...

0
0 beoordelingen

Terreno en calle san Eugenio, 2

Malaga, Málaga, Bailén - Miraflores, Calle san Eugenio, 2
87 995 €

Te koop: perceel in het centrum van Málaga. De bouwvergunning voor de begane gro...

0
0 beoordelingen

Terreno en calle Segismundo Moret, 31

Malaga, Málaga, Bailén - Miraflores, Calle Segismundo Moret, 31
192 000 €

ONROEREND GOED IN TERRENO EN CALLE SEGISMUNDO MORET, 31 EIGENDOMSSTATUS PROINDIV...

0
0 beoordelingen

Terreno en calle Marte

Malaga, Málaga, Puerto de la Torre, Calle Marte
99 900 €

Onroerend goed in Terreno en calle Marte¡KANS! Te koop: prachtige bouwkavel gele...

0
0 beoordelingen

Terreno en calle Jamaica

Malaga, Málaga, Bailén - Miraflores, Calle Jamaica
290 000 €

Onroerend goed in Terreno en calle Jamaica Solar urbano te koop, met een oppervl...

0
0 beoordelingen

Terreno en Barrio Fuente Alegre - El Chaparral - Los Morales

Malaga, Málaga, Puerto de la Torre, Barrio Fuente Alegre - El Chaparral - Los Morales
147 000 €

Onroerend goed in Terreno en Barrio Fuente Alegre - El Chaparral - Los Morales...

0
0 beoordelingen
Bel

We gebruiken onze eigen cookies en die van derden om het gebruik van de website te analyseren en je advertenties te tonen die zijn afgestemd op je voorkeuren, op basis van een profiel dat is gemaakt op basis van je browsegedrag (bijvoorbeeld bezochte pagina's). Meer informatie. Accepteer je cookies?