Verkoop van appartement in Calle Deportes, 2, Águilas

Murcia, Águilas, Centrum, Calle Deportes, 2
Uitverkopen
Beoordeling achterlaten
Appartements Type eigendom
2024 Opleveringsjaar
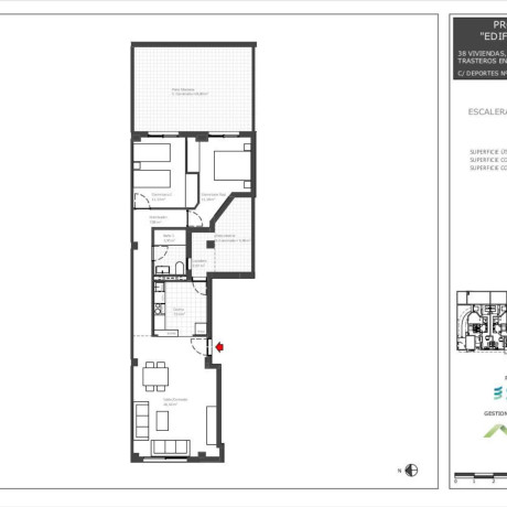
99 m² gebouwde m2
1 Badkamers
2 Slaapkamers
I Trimester Opleverdatum
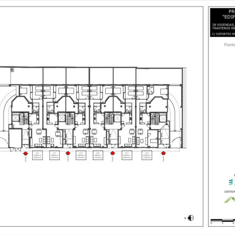
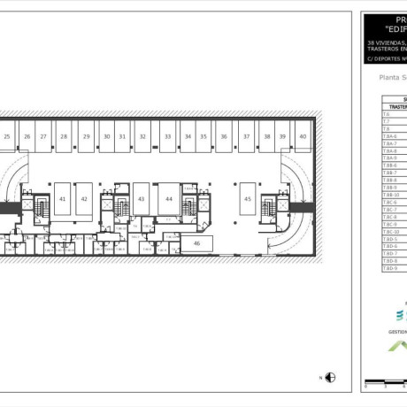
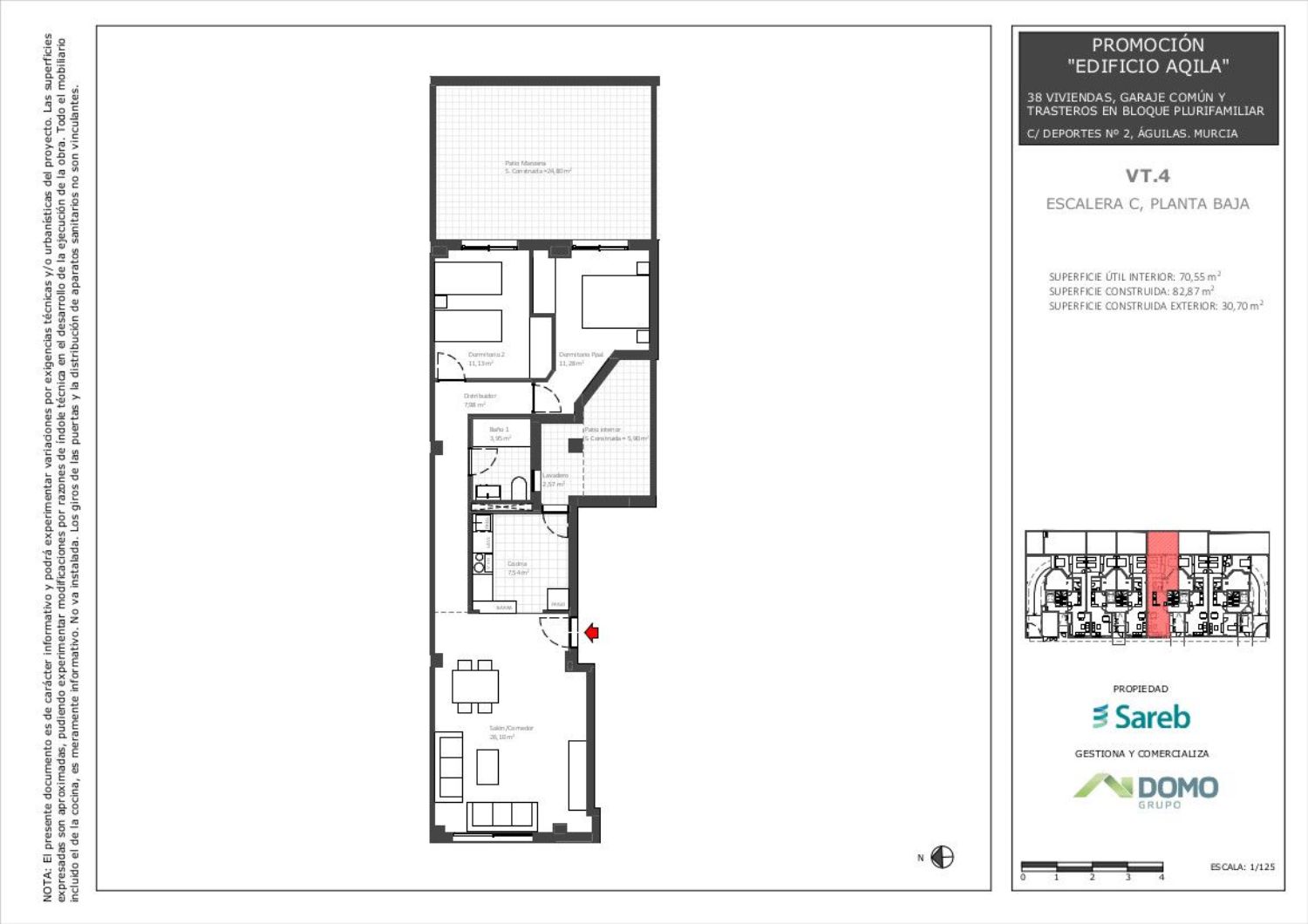
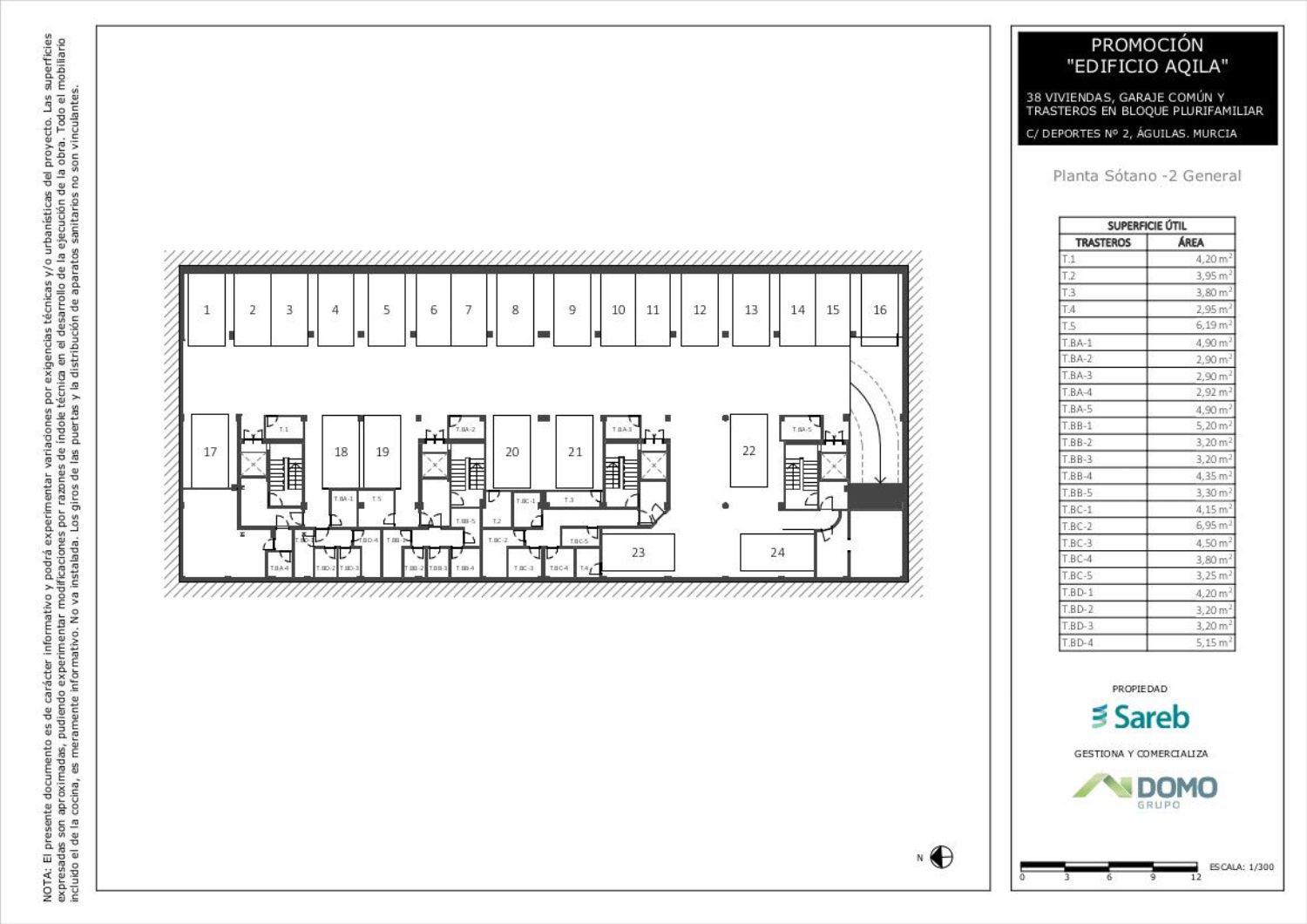
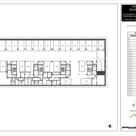
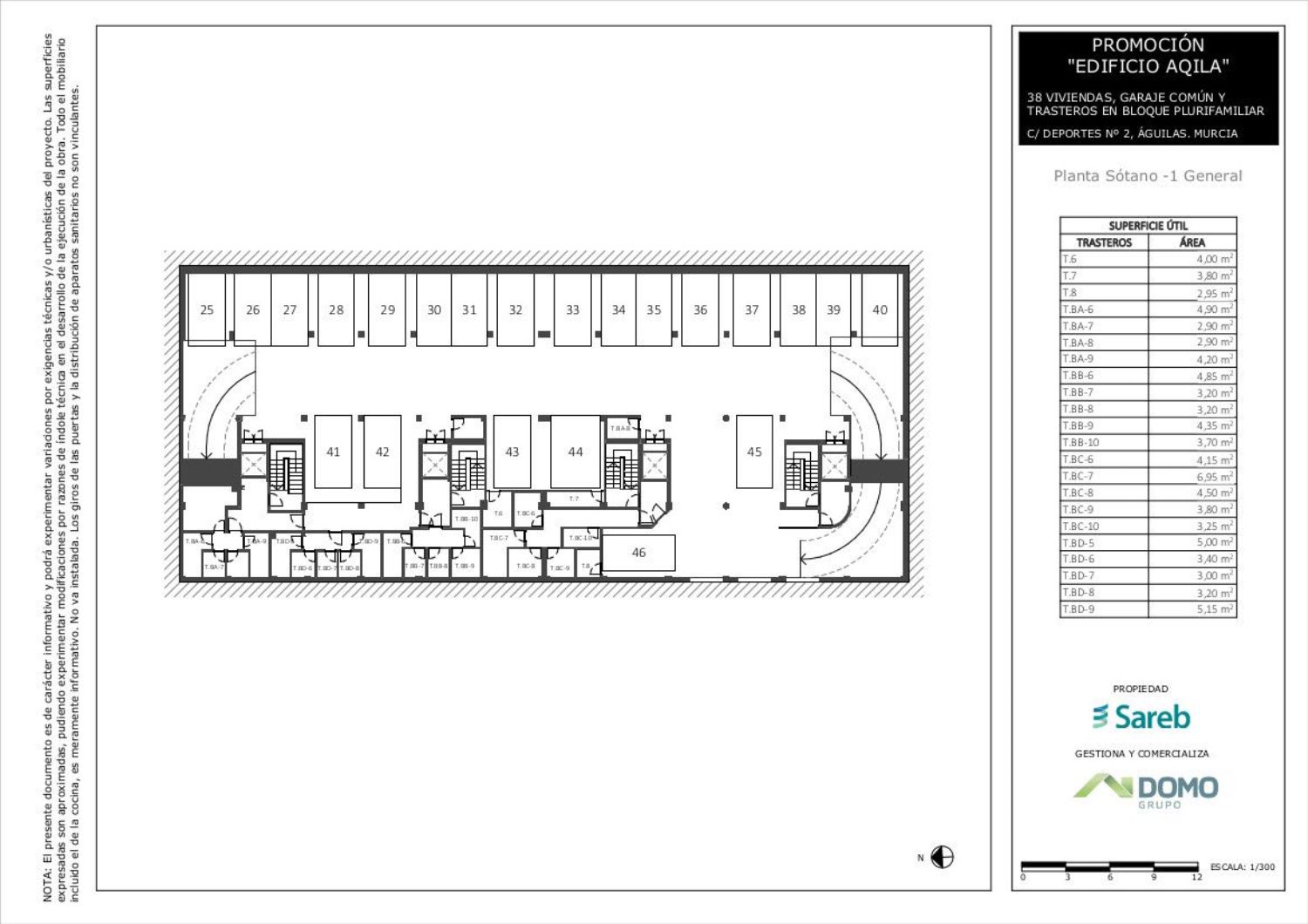
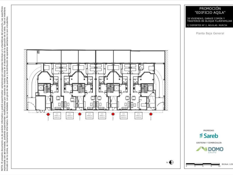
Promoción de 38 viviendas en altura en un único edificio de 5 plantas, con 4 zaguanes de entrada, 2 plantas sótano para 46 plazas de garaje y 46 trasteros.Predomina la tipología de pisos de 3 dormitorios, con 33 unidades. Por plantas, las viviendas se distribuyen a razón de 8 por planta y 6 viviendas en plana baja que cuentan con amplias terrazas de uso privativo en la parte posterior.Se trata de una excelente oportunidad tanto para primera vivienda como para segunda, dada la proximidad a la playa. También puede ser una interesante inversión para destinarla al alquiler.La obra está ejecutada al 55% aproximadamente y acaba de reanudarse. Está prevista su finalización para el primer trimestre de 2024.Edificio propiedad de Sareb- Activo ubicado en el centro de la ciudad y a escasos metros del ayuntamiento o de la playa, 1ª residencia principalmente, pero también 2ª residencia para público mayor del interior para pasar largas temporadas.- Perfectamente comunicada por autopista, con todos los servicios de una ciudad y las ventajas de la costa.El edificio se encuentra en la localidad de Águilas en la comunidad autónoma de la Región de Murcia, a unos 10 minutos andando del ayuntamiento y a 5 minutos andando de playa de Poniente. En la zona podemos encontrar varios supermercados, escuelas e institutos públicos. La promoción está situado a unos 70 km del aeropuerto de Murcia, y perfectamente comunicada por autopista, con todos los servicios de una ciudad y las ventajas de la costa.Águilas, municipio de la Región de Murcia, está situado en la costa del mar Mediterráneo. Cuenta con 35.956 habitantes. Se encuentra a 105 Km de la capital y a 37 km de Lorca. La ciudad también cuenta con un servicio de Cercanías que comienza en esta y se comunica con distintas poblaciones de Murcia hasta llegar a la capital.La economía de la zona se sostiene por su puerto, el turismo y agricultura de frutas y hortalizas. Águilas también es conocida por el carnaval, declarado fiesta de Interés Turístico InternacionalPonte en contacto con nosotros para ampliar información o reservar vivienda.

Kenmerken

Complex information

  • Wooncomplex
    Edificio Aguila
  • Type eigendom
    Appartements

Projectinformatie / Werkstatus

  • Opleveringsjaar
    2024
  • Opleverdatum
    I Trimester

Gegevens van het onroerend goed

  • Slaapkamers
    2
  • Badkamers
    1
  • gebouwde m2
    99 m²
  • Type onroerend goed
    Nieuwbouw

Energiecertificering

  • Energielabel
    E

Faciliteiten

Woonvoorzieningen:

Opslagruimte
Binnenramen
Terraza

Levering:

Met water

In gebouw:

Lift
Berging

Marktprijstatistieken voor Piso en venta en calle Deportes, 2

213 956 € (1 022 €/m2)
Gemiddelde prijs van primaire Appartements in de stad Águilas
314 367 € (3 315 €/m2)
Gemiddelde prijs van primaire Appartements in district Centrum
316 503 € (2 713 €/m2)
Gemiddelde prijs van secundaire Appartements in district Centrum

Kaart

Murcia, Águilas, Centrum, Calle Deportes, 2 Naar deze locatie gaan
Laat een beoordeling achter over Piso en venta en calle Deportes, 2
0
0 beoordelingen
1
0% (0)
2
0% (0)
3
0% (0)
4
0% (0)
5
0% (0)
Edificio Aguila
Wooncomplex
Uitverkopen
Contact adverteerder

Neem voor meer informatie contact op met het platform

REF: 29

Beoordelingen over Piso en venta en calle Deportes, 2
Loading...

No reviews have been left for this object yet

Dichtstbijzijnde woningen

Verken nabijgelegen eigendommen die we hebben ontdekt in de buurt van deze locatie

Apartamentos en Venta en Calle Deportes, 2, Águilas

Murcia, Águilas, Centrum, Calle Deportes, 2
94 700 €

Promoción de 38 viviendas en altura en un único edificio de 5 plantas, con 4 zag...

0
0 beoordelingen

Apartamentos en Venta en Calle Deportes, 2, Águilas

Murcia, Águilas, Centrum, Calle Deportes, 2
97 900 €

Promoción de 38 viviendas en altura en un único edificio de 5 plantas, con 4 zag...

0
0 beoordelingen

Apartamentos en Venta en Calle Deportes, 2, Águilas

Murcia, Águilas, Centrum, Calle Deportes, 2
107 400 €

Promoción de 38 viviendas en altura en un único edificio de 5 plantas, con 4 zag...

0
0 beoordelingen

Apartamentos en Venta en Calle Deportes, 2, Águilas

Murcia, Águilas, Centrum, Calle Deportes, 2
112 000 €

Promoción de 38 viviendas en altura en un único edificio de 5 plantas, con 4 zag...

0
0 beoordelingen

Apartamentos en Venta en Calle Deportes, 2, Águilas

Murcia, Águilas, Centrum, Calle Deportes, 2
102 100 €

Promoción de 38 viviendas en altura en un único edificio de 5 plantas, con 4 zag...

0
0 beoordelingen

Apartamentos en Venta en Calle Deportes, 2, Águilas

Murcia, Águilas, Centrum, Calle Deportes, 2
106 300 €

Promoción de 38 viviendas en altura en un único edificio de 5 plantas, con 4 zag...

0
0 beoordelingen

Apartamentos en Venta en Calle Deportes, 2, Águilas

Murcia, Águilas, Centrum, Calle Deportes, 2
110 500 €

Promoción de 38 viviendas en altura en un único edificio de 5 plantas, con 4 zag...

0
0 beoordelingen

Apartamentos en Venta en Calle Deportes, 2, Águilas

Murcia, Águilas, Centrum, Calle Deportes, 2
111 600 €

Promoción de 38 viviendas en altura en un único edificio de 5 plantas, con 4 zag...

0
0 beoordelingen

Apartamentos en Venta en Calle Deportes, 2, Águilas

Murcia, Águilas, Centrum, Calle Deportes, 2
113 400 €

Promoción de 38 viviendas en altura en un único edificio de 5 plantas, con 4 zag...

0
0 beoordelingen

We gebruiken onze eigen cookies en die van derden om het gebruik van de website te analyseren en je advertenties te tonen die zijn afgestemd op je voorkeuren, op basis van een profiel dat is gemaakt op basis van je browsegedrag (bijvoorbeeld bezochte pagina's). Meer informatie. Accepteer je cookies?