Terreno en calle de Galicia, 39

Pontevedra, Meaño, Calle de Galicia, 39
290 000 €
Beoordeling achterlaten
Stedelijk Type eigendom
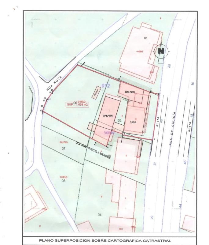
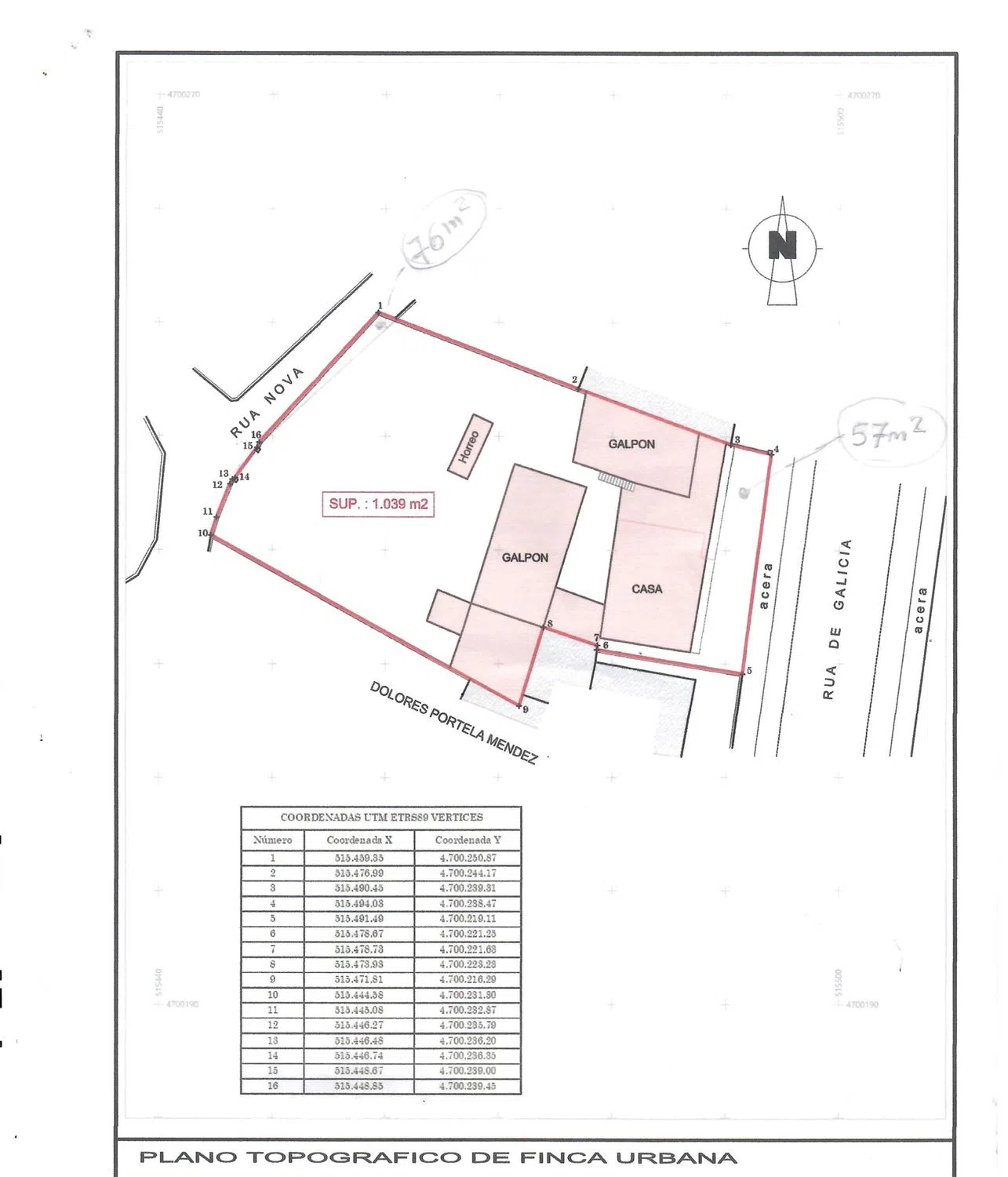
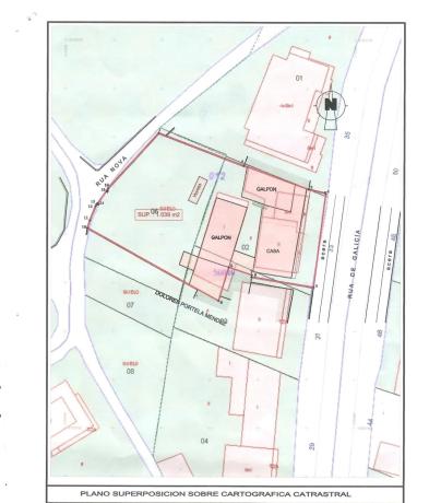
1 100 m² Oppervlakte van het terrein
4 Bebouwbare percelen
1 100 m² Bouwvolume
**Terreno en Venta en el Corazón de la Ciudad - Oportunidad Única** Descubre este espectacular terreno edificable de 1.100 m², ubicado en una zona urbana privilegiada. Con acceso directo a servicios como agua, luz, alcantarillado y gas natural, este espacio ofrece múltiples posibilidades para desarrolladores e inversores. La parte de la ordenanza 1 permite construir hasta 11 viviendas y un bajo comercial, o incluso 14 viviendas si decides destinar el bajo a residencias. Además, la ordenanza 2 ofrece la opción de edificar una vivienda adosada pequeña o crear un hermoso jardín con piscina para el edificio. Imagina el potencial de un proyecto residencial en una ubicación estratégica, con la posibilidad de edificar hasta cuatro plantas. Este terreno no solo es una inversión, sino también una oportunidad para contribuir al crecimiento de la comunidad. Con acerados y alumbrado público ya instalados, el terreno está listo para comenzar a construir tu sueño. ¡No dejes pasar esta oportunidad y contáctanos para más información!

Kenmerken

Complex information

  • Type eigendom
    Stedelijk

Gegevens van het onroerend goed

  • Type onroerend goed
    Tweedehands

Oppervlakten

  • Oppervlakte van het terrein
    1 100 m²

Base

  • Minimale verkoopperceel
    1 100 m²
  • Bebouwbare percelen
    4
  • Bouwvolume
    1 100 m²

Faciliteiten

Levering:

Riolering

Marktprijstatistieken voor Terreno en calle de Galicia, 39

Kaart

Pontevedra, Meaño, Calle de Galicia, 39 Naar deze locatie gaan
Laat een beoordeling achter over Terreno en calle de Galicia, 39
0
0 beoordelingen
1
0% (0)
2
0% (0)
3
0% (0)
4
0% (0)
5
0% (0)
INMOBILIARIA SALNES
290 000 €
Contact adverteerder

Neem voor meer informatie contact op met het platform

REF: 383143

Beoordelingen over Terreno en calle de Galicia, 39
Loading...

No reviews have been left for this object yet

Dichtstbijzijnde woningen

Verken nabijgelegen eigendommen die we hebben ontdekt in de buurt van deze locatie

¡Tu rincón de paz a 6 Km de Sanxenxo!

Pontevedra, Sanxenxo
280 000 €

Parcela con casita de madera y garaje independiente de 20 m2. La vivienda, de 47...

0
0 beoordelingen

Terreno en Ep-9507

Pontevedra, Meis, EP-9507
65 000 €

En el corazón verde de Armenteira, Meis, se ofrece en venta este excepcional ter...

0
0 beoordelingen

Terreno en Lugar Bouza-Gondar, 3

Pontevedra, Sanxenxo, Villalonga, Lugar Bouza-Gondar, 3
65 000 €

Oportunidad. A la venta parcelas edificables. Parcelas en zona elevada, soleada...

0
0 beoordelingen

Terreno en Adina-Portonovo

Pontevedra, Sanxenxo, Adina-Portonovo, Adina-Portonovo
129 000 €

Tenemos 3 parcelas urbanizables en venta, situadas a solo 700 metros de la playa...

0
0 beoordelingen

Terreno en calle de Galicia

Pontevedra, Meaño, Calle de Galicia
115 000 €

¿Buscas un lugar privilegiado para construir tu vivienda en las Rías Baixas? ¡Es...

0
0 beoordelingen

Terreno en calle de Galicia, 32

Pontevedra, Meaño, Calle de Galicia, 32
240 000 €

SOLAR EN EL CENTRO DE DENA. A TAN SOLO 10 MINUTOS EN COCHE DE SANXENXO. Ideal co...

0
0 beoordelingen

Terreno en Sanxenxo

Pontevedra, Sanxenxo, Sanxenxo, Sanxenxo
350 000 €

PARCELA EDIFICABLE PARA CHALET UNICO o 2 CHALETS PARCELA SEGREGADA 165.000 € CAD...

0
0 beoordelingen

Terreno en Lugar Arra, 6 a

Pontevedra, Sanxenxo, Adina-Portonovo, Lugar Arra, 6 A
89 900 €

Terreno a 600 metros de la playa de montalvo y a 1 km de portonovo donde tienes...

0
0 beoordelingen

Terreno en calle de Galicia, 39

Pontevedra, Meaño, Calle de Galicia, 39
290 000 €

**Terreno en Venta en el Corazón de la Ciudad - Oportunidad Única** Descubre est...

0
0 beoordelingen
Bel

We gebruiken onze eigen cookies en die van derden om het gebruik van de website te analyseren en je advertenties te tonen die zijn afgestemd op je voorkeuren, op basis van een profiel dat is gemaakt op basis van je browsegedrag (bijvoorbeeld bezochte pagina's). Meer informatie. Accepteer je cookies?