Verkoop van een geschakelde woning in , Valmojado

Uitverkopen
Beoordeling achterlaten
Tussenwoningen Type eigendom
141 m² gebouwde m2
3 Badkamers
4 Slaapkamers
2 Planta
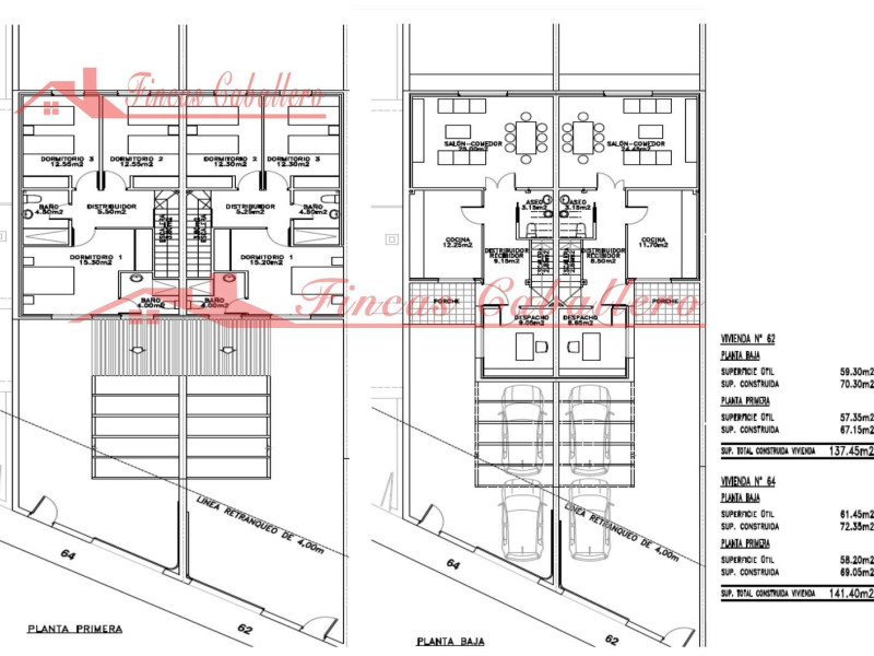
FINCAS CABALLERO vende chalets de OBRA NUEVA EN VALMOJADONO SE TRATA DE VIVIENDAS EN AUTOPROMOCIÓNNO COBRRAMOS COMISION AL COMPRADOR.La vivienda esta distribuida de la siguiente forma:- Planta baja: cocina independiente, aseo, gran salón con salida al patio trasero y despacho.- Planta primera: tres dormitorios y dos cuartos de baño uno de ellos en la habitación principal.La vivienda está construida sobre una parcela de 253 metros.CARACTERISTICAS DE LA VIVIENDA.- Ventanas de PVC con rotura de puente térmico de color gris grafito (máximo aislamiento)- Aire acondicionado frio calor por conductos.- Agua caliente por aerotermia.- Puertas interiores lacadas en blanca.- Armarios forrados.- Motor en la puerta de vehículos.- Suelos de planta baja en gres y primera planta en tarima flotante.La localidad dispone de centro de salud 24h, instituto, colegio, guarderías, equipamientos deportivos (pistas de padel municipal, piscina municipal, gimnasio.. . ) Varios supermercados (Mercadona, la despensa.. . ), clínicas dentales y de fisioterapia, podólogo, farmacia, parafarmacia, óptica, clínica veterinaria, entidades bancariaContacte con nosotros esteremos encantados de resolver alguna dudaMovil - WhatsAppO visitemos sin compromiso en nuestra oficina Av. Constitucion 42 bajo 45940 (al lado del Estanco y de Correos).

Kenmerken

Complex information

  • Wooncomplex
    en Valmojado
  • Type eigendom
    Tussenwoningen

Gegevens van het onroerend goed

  • Planta
    2
  • Slaapkamers
    4
  • Badkamers
    3
  • gebouwde m2
    141 m²
  • Type onroerend goed
    Nieuwbouw

Faciliteiten

Woonvoorzieningen:

Airconditioning
Bergplaats
Binnenramen

Levering:

Met water

In gebouw:

Zwembad
Sportschool
Spa

Soort keuken:

Onafhankelijke keuken

Staat:

Nieuwbouw

Marktprijstatistieken voor Chalet pareado en venta en Valmojado

Kaart

Toledo, Valmojado Naar deze locatie gaan
Laat een beoordeling achter over Chalet pareado en venta en Valmojado
0
0 beoordelingen
1
0% (0)
2
0% (0)
3
0% (0)
4
0% (0)
5
0% (0)
en Valmojado
Wooncomplex
Uitverkopen
Contact adverteerder

Neem voor meer informatie contact op met het platform

REF: 4455

Beoordelingen over Chalet pareado en venta en Valmojado
Loading...

No reviews have been left for this object yet

Dichtstbijzijnde woningen

Verken nabijgelegen eigendommen die we hebben ontdekt in de buurt van deze locatie

Obra nueva en Valmojado en Valmojado

Toledo, Valmojado
220 000 €

FINCAS CABALLERO vende chalets de OBRA NUEVA EN VALMOJADONO SE TRATA DE VIVIENDA...

0
0 beoordelingen

Obra nueva en Valmojado en Valmojado

Toledo, Valmojado
220 000 €

FINCAS CABALLERO vende chalets de OBRA NUEVA EN VALMOJADONO SE TRATA DE VIVIENDA...

0
0 beoordelingen

Obra nueva Milu Home en Valmojado

Toledo, Valmojado
289 000 €

Descripción: OBRA NUEVA. venta directa, vivienda con entrega inmediata, MILU CON...

0
0 beoordelingen

Chalet adosado en venta en calle Almendrales, 23

Toledo, Valmojado
235 000 €

In het charmante Valmojado biedt zich een uitzonderlijke kans aan om een nieu...

0
0 beoordelingen

Chalet adosado en venta en calle Almendrales, 23

Toledo, Valmojado
229 000 €

In het charmante Valmojado biedt zich een uitzonderlijke kans aan om een nieu...

0
0 beoordelingen

We gebruiken onze eigen cookies en die van derden om het gebruik van de website te analyseren en je advertenties te tonen die zijn afgestemd op je voorkeuren, op basis van een profiel dat is gemaakt op basis van je browsegedrag (bijvoorbeeld bezochte pagina's). Meer informatie. Accepteer je cookies?