Terreno en plaza Iglesia

Valencia, Cortes de Pallas, Plaza Iglesia
150 000 €
Beoordeling achterlaten
Stedelijk Type eigendom
167 m² Oppervlakte van het terrein
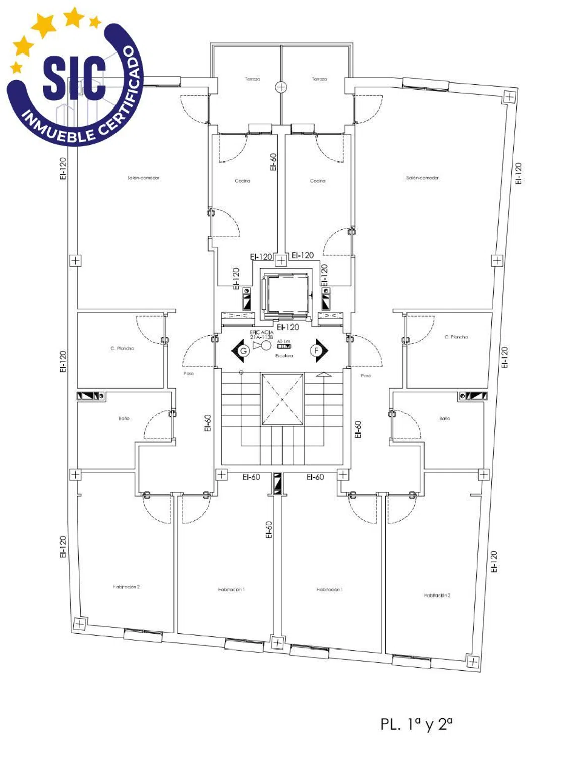
Terreno Urbano con Proyecto Básico en Venta – Oportunidad de Inversión en Cortes de Pallás Se ofrece en exclusiva un terreno urbano de 167 m² situado en pleno núcleo urbano de Cortes de Pallás, una localidad en auge tanto por su atractivo turístico como por el creciente desarrollo de infraestructuras energéticas en la zona. El terreno se vende con un proyecto básico que contempla la construcción de un edificio con 9 viviendas y locales comerciales en planta baja. La edificación proyectada da frente a la plaza principal, donde la normativa urbanística permite planta baja más dos alturas. Además, la fachada posterior del edificio da a un barranco, lo que ofrece la posibilidad de desarrollar niveles adicionales por debajo del nivel de acceso desde la plaza, incrementando así la edificabilidad efectiva y el potencial de rendimiento de la promoción. Características principales: ●Superficie del solar: 167 m². ●Proyecto básico incluido: 9 viviendas + locales comerciales. ●Frente a la plaza, con posibilidad de edificar PB + 2 alturas. ●Posibilidad de niveles adicionales en la fachada trasera (vistas al barranco). ●Zona con alta demanda de vivienda por turismo y trabajadores desplazados. ●Emplazamiento estratégico en entorno natural y con todos los servicios. Cortes de Pallás es una localidad con gran encanto natural, ideal para turismo rural, senderismo y actividades de montaña. La reciente implantación de proyectos energéticos está atrayendo a numerosos trabajadores a la zona, generando una demanda estable de alojamiento. Una oportunidad ideal para promotores e inversores que buscan un proyecto listo para desarrollar con alto potencial de rentabilidad tanto en alquiler turístico como residencial. La descripción del presente inmueble e imágenes tienen mero carácter informativo y en ningún caso carácter contractual, pudiendo ser modificados por la inmobiliaria comercializadora sin que ello implique responsabilidad alguna frente a terceros. En el precio de venta a público, esta propiedad NO incluye los gastos de adquisición (Notario, registro, gestión, honorarios, etc…).

Kenmerken

Complex information

  • Type eigendom
    Stedelijk

Gegevens van het onroerend goed

  • Type onroerend goed
    Tweedehands

Oppervlakten

  • Oppervlakte van het terrein
    167 m²

Base

Marktprijstatistieken voor Terreno en plaza Iglesia

Kaart

Valencia, Cortes de Pallas, Plaza Iglesia Naar deze locatie gaan
Laat een beoordeling achter over Terreno en plaza Iglesia
0
0 beoordelingen
1
0% (0)
2
0% (0)
3
0% (0)
4
0% (0)
5
0% (0)
RE/MAX Urbe ll
150 000 €
Contact adverteerder

Neem voor meer informatie contact op met het platform

REF: 380768

Beoordelingen over Terreno en plaza Iglesia
Loading...

No reviews have been left for this object yet

Dichtstbijzijnde woningen

Verken nabijgelegen eigendommen die we hebben ontdekt in de buurt van deze locatie

Terreno en plaza Iglesia

Valencia, Cortes de Pallas, Plaza Iglesia
150 000 €

Terreno Urbano con Proyecto Básico en Venta – Oportunidad de Inversión en Cortes...

0
0 beoordelingen
Bel

We gebruiken onze eigen cookies en die van derden om het gebruik van de website te analyseren en je advertenties te tonen die zijn afgestemd op je voorkeuren, op basis van een profiel dat is gemaakt op basis van je browsegedrag (bijvoorbeeld bezochte pagina's). Meer informatie. Accepteer je cookies?