Spanje Nieuwe bouw Spanje Nieuwe bouw Zaragoza Nieuwe bouw Saragossa San Lamberto 17 Casa o chalet independiente en venta en calle Colonia San Lamberto, 17

Verkoop van onafhankelijke chalet in Calle Colonia San Lamberto, 17, Saragossa

Zaragoza, Saragossa, Casetas - Garrapinillos - Monzalbarba, Calle Colonia San Lamberto, 17
Uitverkopen
Beoordeling achterlaten
Vrijstaand chalet Type eigendom
2024 Opleveringsjaar
521 m² gebouwde m2
5 Badkamers
5 Slaapkamers
Vloerverwarming Verwarming
3 Planta
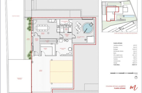
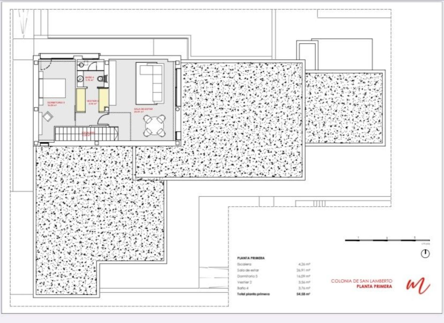
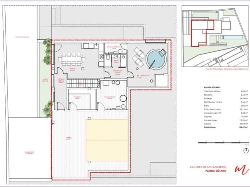
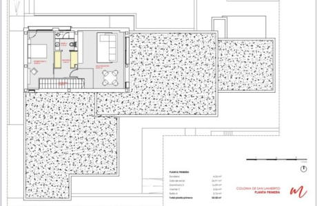
Lujoso vivienda unifamiliar aislada de obra nueva, ubicada en la exclusiva urbanización de Colonia de San Lamberto en Zaragoza, a tan sólo pocos minutos del centro de la ciudad, zona de ocio, supermercados, parada de autobuses, reconocidos colegios, centro de salud, entre otros servicios de interés.La parcela cuenta con 1.000m² donde se ubica la vivienda y amplios espacios exteriores con vegetación y piscina privada.El acceso a la parcela se realiza desde el vial principal de la urbanización y cuenta con entrada independiente para vehículos y peatones.Actualmente se encuentra en fase de construcción con previsión de entrega de llaves en Marzo de 2024.Está vivienda consta de 521,28m² total y 411,81m² útiles distribuidos en 3 espaciosas y luminosas plantas, aprovechando al máximo todas las estancias, cuenta con 5 dormitorios dobles y uno individual de servicio con baño y acceso independiente, 5 baños completos y un aseo; amplio y luminoso salón, que conecta a todas las áreas de la casa, cocina, comedor, zona de labores, terraza, zonas verde y piscina, también consta en el sótano un espacio para bodega, spa/sauna, cuarto de máquinas.La vivienda dispone de dos amplias plazas de garaje cubierto y un espacioso trastero.Este chalet independiente está construido para vivir con estilo, bajo las directrices de edificación de consumo casi nulo, con calificiación energética A, con excelentes acabados entre las que destaca la fachada con piedra natural travertino para su revestimiento exterior, está diseñada y construida con materiales de acuerdo con las últimas tendencias y buscando la máxima eficiencia energética gracias a su espesor de aislamiento (18 cm), el tratamiento de la estanqueidad al aire, su sistema de calefacción y refrigeración por aerotermia con suelo radiante y refrescante, y su sistema de ventilación mecánica controlada con recuperación de calor, haciendo que la sensación térmica interior sea siempre la más óptimaLa aerotermia contribuye al aprovechamiento de la energía natural, procedente del exterior, lo que significa un ahorro considerable en la facturación final.Las calidades interiores son inmejorables; puertas de paso y armarios de suelo a techo, suelos de material porcelánico, diseños especiales en baños y aparatos de iluminación delicados y elegantes.La vivienda se distribuye en:P. Sótano Diseñado también para disfrutar momentos en familia con un cálido y acogedor ambiente, dispone de una bodega con opción para montar una cocina, cuenta con un baño completo, una zona de SPA con jacuzzi y baño turco dispuesto para brindar la relajación después de las jornadas laborales más exigentes, Así mismo cuenta con amplio garaje cubierto de dos plazas trastero y cuartos de instalaciones.Planta baja o principalEn esta planta dispones de todos los espacios, en ella podemos encontrar 4 habitaciones cada una con sus armarios empotrados diseñados de suelo a techo igual que sus puertas, que les darán una sensación de amplitud y aprovechamiento al máximo de los espacios, dos de los dormitorios con baño completo en suite y amplio vestier en el dormitorio principal.También nos encontramos con un espacioso salón/comedor que podrás invitar y disfrutar con toda la familia y amigos, este conecta con una hermosa cocina semi integrada con isla, diseñada también para ser el centro de tus reuniones si eres un amante de la cocina y te gusta cocinar.Igualmente conectas por medio de unas grandes cristaleras correderas de suelo a techo, que pueden abrirse o cerrarse de forma que ofrece un espacio fluido entre el amplio y luminoso salón a una preciosa terraza, zonas verdes y piscina con zona de chapoteo, cómodas escaleras de acceso y sistema de depuración integrado Desjouyaux.

Kenmerken

Complex information

  • Wooncomplex
    San Lamberto 17
  • Type eigendom
    Vrijstaand chalet

Projectinformatie / Werkstatus

  • Opleveringsjaar
    2024

Kwaliteitsoverzicht

  • Verwarming
    Vloerverwarming

Gegevens van het onroerend goed

  • Planta
    3
  • Slaapkamers
    5
  • Badkamers
    5
  • gebouwde m2
    521 m²
  • Type onroerend goed
    Nieuwbouw

Energiecertificering

  • Energielabel
    A

Faciliteiten

Woonvoorzieningen:

Privézwembad
Inbouwkasten
Sauna
Jacuzzi
Opslagruimte
Opslagruimte
Verwarming
Binnenramen
Buitenkamer
Terraza

In gebouw:

Zwembad
Sauna
Jacuzzi
Spa
Tuinen zona's
Berging
Groene zones
Privézwembad
Winkel

Soort keuken:

Keuken met Eiland

Staat:

Nieuwbouw

Marktprijstatistieken voor Casa o chalet independiente en venta en calle Colonia San Lamberto, 17

Kaart

Zaragoza, Saragossa, Casetas - Garrapinillos - Monzalbarba, Calle Colonia San Lamberto, 17 Naar deze locatie gaan
Laat een beoordeling achter over Casa o chalet independiente en venta en calle Colonia San Lamberto, 17
0
0 beoordelingen
1
0% (0)
2
0% (0)
3
0% (0)
4
0% (0)
5
0% (0)
San Lamberto 17
Wooncomplex
Uitverkopen
Contact adverteerder

Neem voor meer informatie contact op met het platform

REF: 8074

Beoordelingen over Casa o chalet independiente en venta en calle Colonia San Lamberto, 17
Loading...

No reviews have been left for this object yet

Dichtstbijzijnde woningen

Verken nabijgelegen eigendommen die we hebben ontdekt in de buurt van deze locatie

Chalet independiente en Venta en Calle Colonia San Lamberto, 17, Zaragoza

Zaragoza, Saragossa, Casetas - Garrapinillos - Monzalbarba, Calle Colonia San Lamberto, 17
1 250 000 €

Lujoso vivienda unifamiliar aislada de obra nueva, ubicada en la exclusiva urban...

0
0 beoordelingen

Casa o chalet independiente en venta en La Magdalena

Zaragoza, Saragossa, Historisch Centrum
330 000 €

CASA INDEPENDIENTE EN EL CENTRO HISTÓRICO DE ZARAGOZA.En calle Jusepillo de Olle...

0
0 beoordelingen

Casa o chalet independiente en venta en calle Bellas Artes, 4

Zaragoza, Saragossa, Montecanal-Valdespartera-Rosales del Canal, Calle Bellas Artes, 4
750 000 €

¡Oportunidad única! Se vende chalet independiente de obra nueva en Montecanal, Z...

0
0 beoordelingen

Casa o chalet independiente en venta en Ilustración, 31

Zaragoza, Saragossa, Montecanal-Valdespartera-Rosales del Canal, Ilustración, 31
595 000 €

¡Descubre tu hogar ideal en esta espectacular casa independiente! Situada en una...

0
0 beoordelingen

Casa o chalet independiente en venta en calle Bellas Artes, 4

Zaragoza, Saragossa, Montecanal-Valdespartera-Rosales del Canal, Calle Bellas Artes, 4
750 000 €

¡Oportunidad única! Se vende chalet independiente de obra nueva en Montecanal, Z...

0
0 beoordelingen

Casa o chalet independiente en venta en Ilustración, 31

Zaragoza, Saragossa, Montecanal-Valdespartera-Rosales del Canal, Ilustración, 31
595 000 €

¡Descubre tu hogar ideal en esta espectacular casa independiente! Situada en una...

0
0 beoordelingen

Casa o chalet independiente en venta en avenida de la Ilustración, 35

Zaragoza, Saragossa, Montecanal-Valdespartera-Rosales del Canal, Avenida de la Ilustración, 35
840 000 €

**Inmuebles en MONTECANAL** Presentamos un exclusivo chalet en el encantador ba...

0
0 beoordelingen

Casa o chalet independiente en venta en Almenareta

Zaragoza, Saragossa, Casetas - Garrapinillos - Monzalbarba, ALMENARETA
164 900 €

MUNDO CASA ACTUR, les ofrece la oprtunidad de vivir en un lúgar mágico.¡Gran opo...

0
0 beoordelingen

We gebruiken onze eigen cookies en die van derden om het gebruik van de website te analyseren en je advertenties te tonen die zijn afgestemd op je voorkeuren, op basis van een profiel dat is gemaakt op basis van je browsegedrag (bijvoorbeeld bezochte pagina's). Meer informatie. Accepteer je cookies?