Spanje Nieuwe bouw Spanje Nieuwe bouw Toledo Nieuwe bouw Argés Urbanización Olivar Real Chalet adosado en venta en calle San Juan de la Cruz, 283

Verkoop van een geschakelde woning in , Argés

Uitverkopen
Beoordeling achterlaten
Tussenwoningen Type eigendom
114 m² gebouwde m2
1 Badkamers
3 Slaapkamers
1 Planta
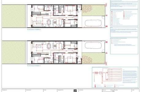
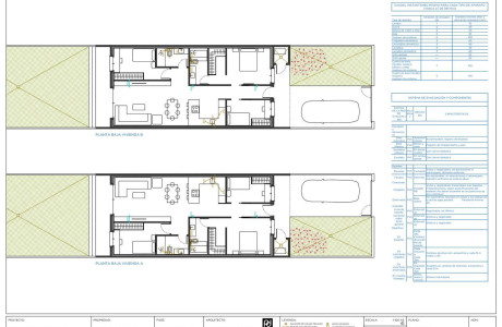
AUTOPROMOCIÓNChalet adosados, de una planta, 114m². de superficie construida y 250 m ² de parcela, con posibilidad de realización de piscina y pérgola. DOMÓTICA CONSTRUCCIÓN 18 MESES A PARTIR DE LICENCIA DE OBRAS MUNICIPAL Diseño moderno de cubierta plana no transitable. La vivienda se distribuye: 35 m2 de salón-comedor-cocina, suite con baño y vestidor, 2 dormitorios, ambos con armario empotrado, 1 baño, sala de instalaciones y aparcamiento de 24m². con porche al patio delantero y al patio trasero Realizada con materiales de excelente calidad que le aportan distinción y diseño: Carpintería interior maciza de lacado blanco y puerta de entrada blindada y cerradura de seguridad, suelo de gres porcelánico de gran formato, carpintería exterior de aluminio con rotura puente térmico con hoja abatible y al menos una oscilobatiente con cristalería climalit 4/12/4, persianas o estores motorizados. Se resalta la importancia del aislamiento térmico, paneles de poliestireno extruido sobre forjado de cubierta, lana mineral en fachada de dos hojas y lana mineral en tabiquería interior. Calificación energética A Sistema de aerotermia por conductos Videoportero con teléfono mural en la entrada y hall y toma de TV y datos en todas las habitaciones.

Kenmerken

Complex information

  • Wooncomplex
    Urbanización Olivar Real
  • Type eigendom
    Tussenwoningen

Gegevens van het onroerend goed

  • Planta
    1
  • Slaapkamers
    3
  • Badkamers
    1
  • gebouwde m2
    114 m²
  • Ontwerptype
    Modern
  • Type onroerend goed
    Nieuwbouw

Energiecertificering

  • Energielabel
    A

Faciliteiten

Woonvoorzieningen:

Inbouwkasten
TV Antenne
Binnenramen
Buitenkamer

In gebouw:

Zwembad
Beveiliging
Videophone

Marktprijstatistieken voor Chalet adosado en venta en calle San Juan de la Cruz, 283

212 000 € (1 768 €/m2)
Gemiddelde prijs van primaire Tussenwoningen in de stad Argés

Kaart

Laat een beoordeling achter over Chalet adosado en venta en calle San Juan de la Cruz, 283
0
0 beoordelingen
1
0% (0)
2
0% (0)
3
0% (0)
4
0% (0)
5
0% (0)
Uitverkopen
Contact adverteerder

Neem voor meer informatie contact op met het platform

REF: 8757

Beoordelingen over Chalet adosado en venta en calle San Juan de la Cruz, 283
Loading...

No reviews have been left for this object yet

Dichtstbijzijnde woningen

Verken nabijgelegen eigendommen die we hebben ontdekt in de buurt van deze locatie

Pareados en Venta, Burguillos de Toledo

Toledo, Burguillos de Toledo
169 000 €

TOLEHOGAR VENDE¡OBRA NUEVA EN AUTOPROMOCION!SE VENDE 10 VIVIENDA PAREADAS CON PR...

0
0 beoordelingen

Pareados en Venta, Argés

Toledo, Argés
210 000 €

PROMOCIÓN DE OBRA NUEVA EN ARGÉS, ZONA AHORRAMÁS.Con la mayor comodidad y eficie...

0
0 beoordelingen

Adosados en Venta, Argés

Toledo, Argés
195 000 €

PROMOCIÓN DE OBRA NUEVA EN ARGÉS, ZONA AHORRAMÁS.Con la mayor comodidad y eficie...

0
0 beoordelingen

Adosados en Venta, Argés

Toledo, Argés
195 000 €

PROMOCIÓN DE OBRA NUEVA EN ARGÉS, ZONA AHORRAMÁS.Con la mayor comodidad y eficie...

0
0 beoordelingen

Adosados en Venta, Argés

Toledo, Argés
199 000 €

AUTOPROMOCIÓNChalet adosados, de una planta, 114m². de superficie construida y 2...

0
0 beoordelingen

Pareados en Venta, Burguillos de Toledo

Toledo, Burguillos de Toledo
214 900 €

Marín Lara Gestión inmobiliaria Vende Magnifico Chalet De OBRA NUEVA, en Burguil...

0
0 beoordelingen

Pareados en Venta, Burguillos de Toledo

Toledo, Burguillos de Toledo
179 000 €

Cómoda distribución en una planta: salón – comedor, 3 dormitorios, 2 baños, el d...

0
0 beoordelingen

CASA CON HISTORIA DE MARCADO CARÁCTER TOLEDANO EN VENTA.

Toledo, Toledo
450 000 €

Ponemos a la venta esta amplia casa del siglo XVII de 351 m² a pie de calle en u...

0
0 beoordelingen

Chalet adosado en venta en calle Tomillo, 20

Toledo, Argés
155 000 €

Personaliza la vivienda a tu gusto. Cualquier propuesta de cambio o mejora será...

0
0 beoordelingen

We gebruiken onze eigen cookies en die van derden om het gebruik van de website te analyseren en je advertenties te tonen die zijn afgestemd op je voorkeuren, op basis van een profiel dat is gemaakt op basis van je browsegedrag (bijvoorbeeld bezochte pagina's). Meer informatie. Accepteer je cookies?