Verkoop van een geschakelde woning in , Burguillos de Toledo

Toledo, Burguillos de Toledo
Uitverkopen
Beoordeling achterlaten
Tussenwoningen Type eigendom
3 Badkamers
3 Slaapkamers
131 m² gebouwde m2
1 Planta
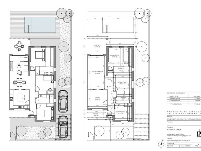
Cómoda distribución en una planta: salón – comedor, 3 dormitorios, 2 baños, el dormitorio principal en suite con su baño y vestidor. Viviendas muy prácticas, sin escaleras interiores. Porche delantero y terraza salida de salón.El garaje en superficie frente de casa en el patio delantero. Gran ventaja de chalet pareado: gozando de intimidad y amplio jardín en la parcela de 300 m2.Acabados modernos sujetas a personalizaciones (alicatados, suelos y pintura), aerotermia incluida.En el precio se incluye todo: parcela, equipo técnico (arquitecto y arquitecto técnico), licencia municipal y construcción – el proyecto llave en mano en la fórmula de autopromoción. La piscina y arreglo de jardín no están incluidos en el precio.Las fotos mostradas en el anuncio son mezcla de renders (iconografías hechas por ordenador como va a quedar la casa) y fotos de otras promociones como ejemplo de acabados que se puede emplear (no reflejan la distribución de esta casa). Las fotos del exterior también son SOLO ejemplo como puede quedar el jardín con la piscina y césped que no están incluidos en el precio.

Kenmerken

Complex information

  • Wooncomplex
    Residencial Aura
  • Type eigendom
    Tussenwoningen

Gegevens van het onroerend goed

  • Planta
    1
  • Slaapkamers
    3
  • Badkamers
    3
  • gebouwde m2
    131 m²
  • Type onroerend goed
    Nieuwbouw

Faciliteiten

Woonvoorzieningen:

Binnenramen
Buitenkamer
Terraza

In gebouw:

Zwembad
Tuin

Marktprijstatistieken voor Chalet pareado en venta en camino de Layos, 22

218 000 € (827 €/m2)
Gemiddelde prijs van primaire Tussenwoningen in de stad Burguillos de Toledo

Kaart

Toledo, Burguillos de Toledo Naar deze locatie gaan
Laat een beoordeling achter over Chalet pareado en venta en camino de Layos, 22
0
0 beoordelingen
1
0% (0)
2
0% (0)
3
0% (0)
4
0% (0)
5
0% (0)
Residencial Aura
Wooncomplex
Uitverkopen
Contact adverteerder

Neem voor meer informatie contact op met het platform

REF: 21122

Beoordelingen over Chalet pareado en venta en camino de Layos, 22
Loading...

No reviews have been left for this object yet

Dichtstbijzijnde woningen

Verken nabijgelegen eigendommen die we hebben ontdekt in de buurt van deze locatie

Pareados en Venta, Burguillos de Toledo

Toledo, Burguillos de Toledo
169 000 €

TOLEHOGAR VENDE¡OBRA NUEVA EN AUTOPROMOCION!SE VENDE 10 VIVIENDA PAREADAS CON PR...

0
0 beoordelingen

Pareados en Venta, Argés

Toledo, Argés
210 000 €

PROMOCIÓN DE OBRA NUEVA EN ARGÉS, ZONA AHORRAMÁS.Con la mayor comodidad y eficie...

0
0 beoordelingen

Adosados en Venta, Argés

Toledo, Argés
195 000 €

PROMOCIÓN DE OBRA NUEVA EN ARGÉS, ZONA AHORRAMÁS.Con la mayor comodidad y eficie...

0
0 beoordelingen

Adosados en Venta, Argés

Toledo, Argés
195 000 €

PROMOCIÓN DE OBRA NUEVA EN ARGÉS, ZONA AHORRAMÁS.Con la mayor comodidad y eficie...

0
0 beoordelingen

Adosados en Venta, Argés

Toledo, Argés
199 000 €

AUTOPROMOCIÓNChalet adosados, de una planta, 114m². de superficie construida y 2...

0
0 beoordelingen

Pareados en Venta, Burguillos de Toledo

Toledo, Burguillos de Toledo
214 900 €

Marín Lara Gestión inmobiliaria Vende Magnifico Chalet De OBRA NUEVA, en Burguil...

0
0 beoordelingen

Pareados en Venta, Burguillos de Toledo

Toledo, Burguillos de Toledo
179 000 €

Cómoda distribución en una planta: salón – comedor, 3 dormitorios, 2 baños, el d...

0
0 beoordelingen

CASA CON HISTORIA DE MARCADO CARÁCTER TOLEDANO EN VENTA.

Toledo, Toledo
450 000 €

Ponemos a la venta esta amplia casa del siglo XVII de 351 m² a pie de calle en u...

0
0 beoordelingen

Chalet adosado en venta en calle Tomillo, 20

Toledo, Argés
155 000 €

Personaliza la vivienda a tu gusto. Cualquier propuesta de cambio o mejora será...

0
0 beoordelingen

We gebruiken onze eigen cookies en die van derden om het gebruik van de website te analyseren en je advertenties te tonen die zijn afgestemd op je voorkeuren, op basis van een profiel dat is gemaakt op basis van je browsegedrag (bijvoorbeeld bezochte pagina's). Meer informatie. Accepteer je cookies?